
£425,000
Wrexham Road, Pulford, Chester
Introduction
* CHARMING DETACHED HOUSE * EXCLUSIVE COURTYARD SETTING. An attractive three bedroom detached house forming part of a small development of just 8 properties in the sought after village of Pulford. The accommodation briefly comprises: open porch, reception hallway with oak wood strip flooring, downstairs WC, open-plan living room/dining area with feature ‘Living Flame’ coal-effect gas fire, garden room with insulated slate effect roof and French doors to the garden, fitted kitchen with a range of high gloss fronted cabinets and oak worktops, utility room with plumbing for laundry appliances, first floor landing, principal bedroom with en-suite shower room, two further bedrooms, and a bathroom which is interlinked with the landing and bedroom two. There is also a useful large loft room approached via a drop down wooden ladder, ideal as an occasional hobby room or simply as storage. The property benefits from gas fired central heating and UPVC double glazed windows. Externally, there is a lawned garden at the front with a block paved driveway leading to a single integral garage. To the rear there is an easy to maintain landscaped garden with patio area, lawn and well stocked borders. The garden enjoys a good degree of privacy. There is no onward chain involved in the sale of this property.
LOCATION

Pulford is geographically located near to both Chester (approximately 6 miles) and Wrexham (approximately 7½ miles). The Village sits close to the Wales-England border and is home to a large hotel, the Grosvenor Pulford Hotel. The neighbouring village of Rossett is well served by schools, village shops and services with a local Co-op food store, pharmacy, doctors' surgery and dentist. Road communications are excellent, being close to the A483 Wrexham by-pass which connects to the Chester Southerly by-pass facilitating access to the national motorway network. Frequent bus services are available to both Wrexham and Chester. The Wrexham Industrial Estate, Chester Business Park and Deeside Industrial Park are all within daily commuting distance, as are the larger centres of Liverpool and Manchester which are served by international airports.
THE ACCOMMODATION COMPRISES:
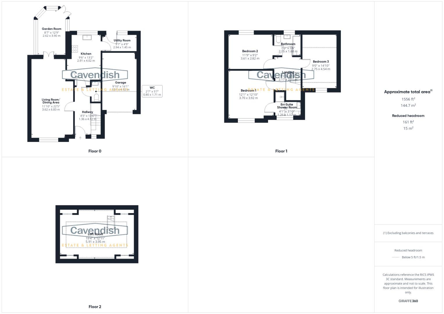
CANOPY PORCH

Covered porch with outside lantern style light. Composite double glazed entrance door to the reception hall.
RECEPTION HALL

Double radiator with thermostat, ceiling light point, coved ceiling, smoke alarm, burglar alarm control pad, wood strip flooring, and UPVC double glazed window with obscured leaded glass, and spindled staircase to first floor. Doors to the living room/dining area, kitchen and downstairs WC.
DOWNSTAIRS WC

Suite comprising: low level WC; and pedestal wash hand basin with mixer tap and tiled splashback. Ceiling light point, extractor, fitted glass shelf, and wood strip flooring.
Dimensions
Metric: 1.73m x 0.81m
Imperial: 5’8″ x 2’8″
LIVING ROOM/DINING AREA

UPVC double glazed window overlooking the front, decorative cast-iron fireplace with tiled inserts, wooden fireplace surround and slate hearth housing a 'Living Flame' coal effect gas fire, single radiator with thermostat, TV aerial point, decorative coving, two ceiling light points, oak wood strip flooring, and space for dining table and chairs. Door to the kitchen, and double opening UPVC double glazed doors to the garden room.
Dimensions
Metric: 6.83m x 3.61m narrowing to 2.92m
Imperial: 22’5″ x 11’10” narrowing to 9’7″
GARDEN ROOM

Fitted desk unit with storage cupboard, drawers and shelving, electric radiator, plastered ceiling with spotlights, wall light point, TV aerial point, UPVC double glazed windows with blinds, and UPVC double glazed French doors with fitted blinds to the rear garden.
Dimensions
Metric: 3.91m x 2.64m
Imperial: 12’10” x 8’8″
KITCHEN

Fitted with a modern range of cream high gloss fronted base and wall level units incorporating drawers and cupboards with oak worktops and matching upstands, incorporating a small breakfast bar. Inset single bowl stainless steel Franke sink unit and drainer with mixer tap. Fitted four-ring AEG gas hob with stainless steel splashback and extractor above, built-in AEG electric fan assisted oven, microwave oven, and dishwasher. Two ceiling light points, tiled floor, double radiator with thermostat, TV point, telephone point, under-cupboard lighting, and UPVC double glazed window overlooking the rear, Door to the utility room.
Dimensions
Metric: 4.42m max x 2.90m max
Imperial: 14’6″ max x 9’6″ max
UTILITY ROOM
Plumbing and space for washing machine, space for freezer, fitted limed oak fronted triple wall cupboard, wall mounted Worcester combination condensing gas fired central heating boiler, UPVC double glazed window to rear, and composite double glazed door to outside.
Dimensions
Metric: 2.95m x 1.45m
Imperial: 9’8″ x 4’9″
LANDING

Spindled balustrade, ceiling light point, mains connected smoke alarm, and access to loft area with retractable wooden ladder. Doors to bedroom one, bedroom two, bedroom three and bathroom.
BEDROOM ONE

UPVC double glazed window overlooking the front, coved ceiling, ceiling light point, and double radiator with thermostat. Door to en-suite shower room.
Dimensions
Metric: 3.94m x 3.71m
Imperial: 12’11” x 12’2″
EN-SUITE SHOWER ROOM

White suite comprising: tiled shower enclosure with Mira shower and glazed door; pedestal wash hand basin with mixer tap and tiled splashback; and low level WC. Recess ceiling spotlights, two fitted glass shelves, large wall mirror, extractor, single radiator with thermostat, laminate wood strip flooring, and UPVC double glazed window with obscured glass.
Dimensions
Metric: 1.98m x 1.14m plus shower
Imperial: 6’6″ x 3’9″ plus shower
BEDROOM TWO

UPVC double glazed window overlooking the rear, single radiator with thermostat, television aerial point, and ceiling light point. Connecting door to the bathroom.
Dimensions
Metric: 3.61m x 2.79m
Imperial: 11’10” x 9’2″
BEDROOM THREE

UPVC double glazed window overlooking the front, ceiling light point, and double radiator.
Dimensions
Metric: 4.27m x 2.74m overall
Imperial: 14′ x 9′ overall
BATHROOM

Coloured suite comprising: panelled bath with mixer tap and Mira shower over; pedestal wash hand basin with mixer tap; and low level WC. Part-tiled walls, single radiator, wood strip flooring, ceiling light point, extractor, and UPVC double glazed window with obscured glass.
Dimensions
Metric: 2.13m x 1.70m
Imperial: 7′ x 5’7″
LOFT ROOM

Pitched wooden panelled ceiling, spotlighting, laminate wood strip flooring, double glazed Velux roof light, four built-in storage cupboards to each corner, and power points.
Dimensions
Metric: 5.92m x 3.96m
Imperial: 19’5″ x 13′
OUTSIDE FRONT

To the front there is a neatly laid lawned garden with shrubbery and a block paved driveway which leads to a single integral garage. A gated pathway at the side provides access to the rear garden. External gas meter cupboard.
SINGLE GARAGE
With an up and over garage door, power, light, and electrical consumer unit.
Dimensions
Metric: 4.88m x 2.95m
Imperial: 16′ x 9’8″
OUTSIDE REAR

To the rear the garden has been designed for ease of maintenance with a neatly laid lawn, block paving, flagstones and well stocked borders with mature shrubs and trees. Timber built garden shed, urn water featured and cold water tap.
REAR ELEVATION

DIRECTIONS
From Chester proceed over the Grosvenor Bridge to the Overleigh roundabout and take the second exit onto the Wrexham Road, passing the Chester Business Park on the left. At the roundabout with the A55 Expressway continue straight across. Then take the turning left signposted Eccleston and Pulford onto the B5445. Follow the road through Belgrave and Cuckoo's Nest. Follow the road into Pulford and take the turning right shortly after the Church into Castle Hill. Follow the road around to the right and the property will then be observed on the left hand side.
TENURE
* Tenure - understood to be Freehold. Purchasers should verify this through their solicitor.
COUNCIL TAX
* Council Tax Band E - Cheshire West and Chester.
AGENT'S NOTES
* Services - mains gas, electricity, water and drainage are connected.
* The property is on a water meter.
* The property has a burglar alarm installed.
*ANTI MONEY LAUNDERING REGULATIONS
Before we can confirm any sale, we are required to verify everyone’s identity electronically to comply with Government Regulations relating to anti-money laundering. All intending buyers and sellers need to provide identification documentation to satisfy these requirements.
There is an admin fee of £30 per person for this process. Your early attention to supply the documents requested and payment will be appreciated, to avoid any unnecessary delays in confirming the sale agreed.
MATERIAL INFORMATION REPORT
The Material Information Report for this property can be viewed on the Rightmove listing. Alternatively, a copy can be requested from our office which will be sent via email.
*EXTRA SERVICES - REFERRALS
Mortgage referrals, conveyancing referral and surveying referrals will be offered by Cavendish Estate Agents. If a buyer or seller should proceed with any of these services then a commission fee will be paid to Cavendish Estate Agents Ltd upon completion.
VIEWING
By appointment through the Agents Chester Office 01244 404040.
FLOOR PLANS - included for identification purposes only, not to scale.
PS/PMW
LOCATION

Pulford is geographically located near to both Chester (approximately 6 miles) and Wrexham (approximately 7½ miles). The Village sits close to the Wales-England border and is home to a large hotel, the Grosvenor Pulford Hotel. The neighbouring village of Rossett is well served by schools, village shops and services with a local Co-op food store, pharmacy, doctors' surgery and dentist. Road communications are excellent, being close to the A483 Wrexham by-pass which connects to the Chester Southerly by-pass facilitating access to the national motorway network. Frequent bus services are available to both Wrexham and Chester. The Wrexham Industrial Estate, Chester Business Park and Deeside Industrial Park are all within daily commuting distance, as are the larger centres of Liverpool and Manchester which are served by international airports.
THE ACCOMMODATION COMPRISES:

CANOPY PORCH

Covered porch with outside lantern style light. Composite double glazed entrance door to the reception hall.
RECEPTION HALL

Double radiator with thermostat, ceiling light point, coved ceiling, smoke alarm, burglar alarm control pad, wood strip flooring, and UPVC double glazed window with obscured leaded glass, and spindled staircase to first floor. Doors to the living room/dining area, kitchen and downstairs WC.
DOWNSTAIRS WC

Suite comprising: low level WC; and pedestal wash hand basin with mixer tap and tiled splashback. Ceiling light point, extractor, fitted glass shelf, and wood strip flooring.
Dimensions
Metric: 1.73m x 0.81m
Imperial: 5’8″ x 2’8″
LIVING ROOM/DINING AREA

UPVC double glazed window overlooking the front, decorative cast-iron fireplace with tiled inserts, wooden fireplace surround and slate hearth housing a 'Living Flame' coal effect gas fire, single radiator with thermostat, TV aerial point, decorative coving, two ceiling light points, oak wood strip flooring, and space for dining table and chairs. Door to the kitchen, and double opening UPVC double glazed doors to the garden room.
Dimensions
Metric: 6.83m x 3.61m narrowing to 2.92m
Imperial: 22’5″ x 11’10” narrowing to 9’7″
GARDEN ROOM

Fitted desk unit with storage cupboard, drawers and shelving, electric radiator, plastered ceiling with spotlights, wall light point, TV aerial point, UPVC double glazed windows with blinds, and UPVC double glazed French doors with fitted blinds to the rear garden.
Dimensions
Metric: 3.91m x 2.64m
Imperial: 12’10” x 8’8″
KITCHEN

Fitted with a modern range of cream high gloss fronted base and wall level units incorporating drawers and cupboards with oak worktops and matching upstands, incorporating a small breakfast bar. Inset single bowl stainless steel Franke sink unit and drainer with mixer tap. Fitted four-ring AEG gas hob with stainless steel splashback and extractor above, built-in AEG electric fan assisted oven, microwave oven, and dishwasher. Two ceiling light points, tiled floor, double radiator with thermostat, TV point, telephone point, under-cupboard lighting, and UPVC double glazed window overlooking the rear, Door to the utility room.
Dimensions
Metric: 4.42m max x 2.90m max
Imperial: 14’6″ max x 9’6″ max
UTILITY ROOM

Plumbing and space for washing machine, space for freezer, fitted limed oak fronted triple wall cupboard, wall mounted Worcester combination condensing gas fired central heating boiler, UPVC double glazed window to rear, and composite double glazed door to outside.
Dimensions
Metric: 2.95m x 1.45m
Imperial: 9’8″ x 4’9″
LANDING

Spindled balustrade, ceiling light point, mains connected smoke alarm, and access to loft area with retractable wooden ladder. Doors to bedroom one, bedroom two, bedroom three and bathroom.
BEDROOM ONE

UPVC double glazed window overlooking the front, coved ceiling, ceiling light point, and double radiator with thermostat. Door to en-suite shower room.
Dimensions
Metric: 3.94m x 3.71m
Imperial: 12’11” x 12’2″
EN-SUITE SHOWER ROOM

White suite comprising: tiled shower enclosure with Mira shower and glazed door; pedestal wash hand basin with mixer tap and tiled splashback; and low level WC. Recess ceiling spotlights, two fitted glass shelves, large wall mirror, extractor, single radiator with thermostat, laminate wood strip flooring, and UPVC double glazed window with obscured glass.
Dimensions
Metric: 1.98m x 1.14m plus shower
Imperial: 6’6″ x 3’9″ plus shower
BEDROOM TWO

UPVC double glazed window overlooking the rear, single radiator with thermostat, television aerial point, and ceiling light point. Connecting door to the bathroom.
Dimensions
Metric: 3.61m x 2.79m
Imperial: 11’10” x 9’2″
BEDROOM THREE

UPVC double glazed window overlooking the front, ceiling light point, and double radiator.
Dimensions
Metric: 4.27m x 2.74m overall
Imperial: 14′ x 9′ overall
BATHROOM

Coloured suite comprising: panelled bath with mixer tap and Mira shower over; pedestal wash hand basin with mixer tap; and low level WC. Part-tiled walls, single radiator, wood strip flooring, ceiling light point, extractor, and UPVC double glazed window with obscured glass.
Dimensions
Metric: 2.13m x 1.70m
Imperial: 7′ x 5’7″
LOFT ROOM

Pitched wooden panelled ceiling, spotlighting, laminate wood strip flooring, double glazed Velux roof light, four built-in storage cupboards to each corner, and power points.
Dimensions
Metric: 5.92m x 3.96m
Imperial: 19’5″ x 13′
OUTSIDE FRONT

To the front there is a neatly laid lawned garden with shrubbery and a block paved driveway which leads to a single integral garage. A gated pathway at the side provides access to the rear garden. External gas meter cupboard.
SINGLE GARAGE

With an up and over garage door, power, light, and electrical consumer unit.
Dimensions
Metric: 4.88m x 2.95m
Imperial: 16′ x 9’8″
OUTSIDE REAR

To the rear the garden has been designed for ease of maintenance with a neatly laid lawn, block paving, flagstones and well stocked borders with mature shrubs and trees. Timber built garden shed, urn water featured and cold water tap.
REAR ELEVATION

DIRECTIONS

From Chester proceed over the Grosvenor Bridge to the Overleigh roundabout and take the second exit onto the Wrexham Road, passing the Chester Business Park on the left. At the roundabout with the A55 Expressway continue straight across. Then take the turning left signposted Eccleston and Pulford onto the B5445. Follow the road through Belgrave and Cuckoo's Nest. Follow the road into Pulford and take the turning right shortly after the Church into Castle Hill. Follow the road around to the right and the property will then be observed on the left hand side.
TENURE

* Tenure - understood to be Freehold. Purchasers should verify this through their solicitor.
COUNCIL TAX

* Council Tax Band E - Cheshire West and Chester.
AGENT'S NOTES

* Services - mains gas, electricity, water and drainage are connected.
* The property is on a water meter.
* The property has a burglar alarm installed.
*ANTI MONEY LAUNDERING REGULATIONS

Before we can confirm any sale, we are required to verify everyone’s identity electronically to comply with Government Regulations relating to anti-money laundering. All intending buyers and sellers need to provide identification documentation to satisfy these requirements.
There is an admin fee of £30 per person for this process. Your early attention to supply the documents requested and payment will be appreciated, to avoid any unnecessary delays in confirming the sale agreed.
MATERIAL INFORMATION REPORT

The Material Information Report for this property can be viewed on the Rightmove listing. Alternatively, a copy can be requested from our office which will be sent via email.
*EXTRA SERVICES - REFERRALS

Mortgage referrals, conveyancing referral and surveying referrals will be offered by Cavendish Estate Agents. If a buyer or seller should proceed with any of these services then a commission fee will be paid to Cavendish Estate Agents Ltd upon completion.
VIEWING

By appointment through the Agents Chester Office 01244 404040.
FLOOR PLANS - included for identification purposes only, not to scale.
PS/PMW












