
£550,000
Record Street, Ruthin
Introduction
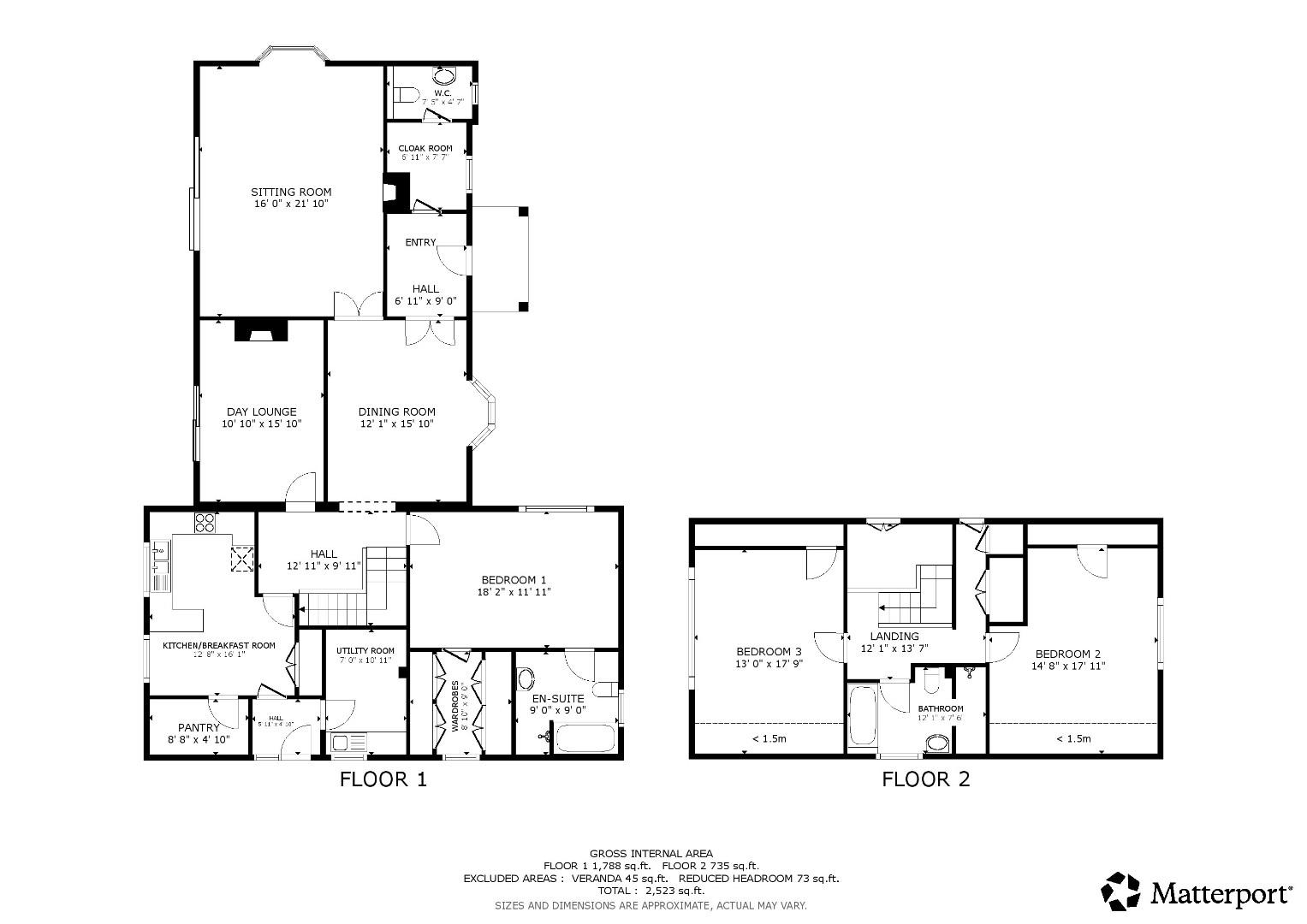
A VERY UNIQUE OPPORTUNITY TO ACQUIRE A LARGE ARCHITECT DESIGNED THREE BEDROOM DETACHED DORMER STYLE HOUSE set within mature and very secluded grounds in the heart of the town centre just off Record Street.Designed to a spacious plan, this elegant family home will lend itself to some refurbishment. It affords deep canopy entrance, hall, inner hall and cloakroom, splendid 21’10” x 16′ sitting room with fine views across Ruthin towards the Clwydian Hills, day lounge, dining room, central hall with galleried landing, kitchen/breakfast room, side hall and utility. Large principal bedroom with walk-in wardrobes and en suite bathroom, first floor landing, two double bedrooms and bathroom.Gated entrance with ample parking and large secluded lawned gardens.
LOCATION
Mulberry Cottage stands in a unique and idyllic setting in the heart of the town. Built some 35 years ago in the grounds of one of the larger houses on Record Street it was designed to a very spacious plan with commodious rooms arranged around a lovely central galliered hall and landing. It does offer some scope for modernisation.
The position whilst very private is so convenient for the town centre with a wide range of shops and facilities within walking distance.
THE ACCOMMODATION COMPRISES
ENTRANCE PORCH
Outbuilt entrance porch with stone pillars and fine hardwood panelled door leading to entrance hall.
ENTRANCE HALL

Coved ceiling, wall light point, glazed door leading to inner hall. Twin glazed doors lead from the hall to the dining room.
Dimensions
Metric: 2.74m x 2.11m
Imperial: 9′ x 6’11”
INNER HALL
Radiator, meter cupboards, recess providing cloaks area with hooks and high level shelf, leaded effect window to front, panelled radiator.
Dimensions
Metric: 2.31m x 2.11m
Imperial: 7’7″ x 6’11”
CLOAKROOM

White suite comprising wash basin and low level WC, tiled floor, coved ceiling, radiator.
Dimensions
Metric: 2.26m x 1.40m
Imperial: 7’5″ x 4’7″
DINING ROOM

An attractive room with wall light points, leaded effect bow window overlooking the side garden and front garden, panelled radiator. Two further glazed doors to sitting room.
Dimensions
Metric: 4.83m x 3.68m
Imperial: 15’10” x 12’1″
SITTING ROOM

A very spacious and well lit room with a box bay window to gable and a wide double glazed sliding patio window opening to the easterly facing garden with splendid views across town to the Clwydian Hills. Coved ceiling, Adams style fireplace with decorative painted surround, metal insert and marble hearth. Wall light points, panelled radiator.
Dimensions
Metric: 6.65m x 4.88m
Imperial: 21’10” x 16′
INNER HALL/GALLERIED LANDING

Fine galleried landing, turned staircase with understairs storage, high level Velux roof light, panelled radiator.
Dimensions
Metric: 3.94m x 3.02m
Imperial: 12’11” x 9’11”
DAY LOUNGE

Well lit with a wide double glazed sliding patio window opening to the easterly facing garden with far reaching views across town towards the Clwydian Hills, Adams style fireplace with pine surround, decorative inset fireplace with tiling, hearth and Living Flame gas fire, fitted bookshelves and cabinets to recess, coved ceiling, wall light points, panelled radiator.
Dimensions
Metric: 4.83m x 3.30m
Imperial: 15’10” x 10’10”
KITCHEN/BREAKFAST ROOM

Fitted with a modern range of base and wall mounted cupboards and drawers with a light cream tone finish to door and drawer fronts and contrasting stone effect working surfaces to include a peninsula divide, inset one and half bowl sink with mixer tap and drainer, inset four ring electric hob with stainless steel and glass extractor hood and light above, integrated double oven, fridge, freezer and dishwasher. Two double glazed windows, panelled radiator. Built-in double door pantry cupboard with shelving, further walk-in pantry with window, wall shelving.
Dimensions
Metric: 4.90m x 3.86m max
Imperial: 16’1″ x 12’8″ max
SIDE PORCH
Double glazed window and door.
UTILITY ROOM

Fitted worktop with inset sink, void and plumbing for washing machine, fitted wall cabinets, panelled radiator. Ideal Mexico 2 gas boiler providing heating and hot water, panelled radiator.
Dimensions
Metric: 3.33m x 2.13m
Imperial: 10’11” x 7′
BEDROOM ONE

A spacious double room with wide double glazed window, coved ceiling, wall light points, panelled radiator.
Dimensions
Metric: 5.54m x 3.63m
Imperial: 18’2″ x 11’11”
DRESSING ROOM
Walk-in dressing room with fitted wardrobes to either side providing a combination of hanging rails and shelving and locker storage cupboards above, double glazed window, panelled radiator.
EN SUITE BATHROOM

White suite comprising panelled bath with grip handles, separate walk-in shower cubicle with smoked glass screen and high output shower, pedestal wash basin and WC, part tiled walls, double glazed window, panelled radiator.
Dimensions
Metric: 2.74m x 2.74m
Imperial: 9′ x 9′
FIRST FLOOR LANDNIG
Side area with double door airing cupboard with slatted shelving, further cupboard area beyond.
BEDROOM TWO

Leaded effect double glazed window to side, partially vaulted ceiling with large walk-in under eaves cupboard, panelled radiator.
Dimensions
Metric: 5.46m x 4.47m
Imperial: 17’11” x 14’8″
BEDROOM THREE

Spacious double room with wide double glazed window affording a splendid east and southerly aspect across Ruthin towards the Clwydian Hills, partially vaulted ceiling, large walk-in under eaves storage cupboard, panelled radiator.
Dimensions
Metric: 5.41m x 3.96m
Imperial: 17’9″ x 13′
BATHROOM

White suite comprising panelled bath with grip handles, separate walk-in shower cubicle with smoked glass screen and high output shower, pedestal wash basin and WC, double glazed window with a northerly aspect across town towards the Clwydian Hills, panelled radiator.
Dimensions
Metric: 3.68m x 2.29m
Imperial: 12’1″ x 7’6″
OUTSIDE
The property stands in a very secluded setting between Record Street and Dog Lane in the heart of Ruthin. I

It is approached via a stone arched entrance off Record Street via a shared tarmacadam driveway which leads to two timber panelled gates which open to the tarmacadam drive and parking area to the side of the house. The house stands within grounds of about 0.3 acre set within the original stone walls of Ruthin which form the boundary to the southern side adjoining Dog Lane.

It is a very private setting being mainly lawned with a copper beech tree, fruit trees and established shrubbery borders. A conifer screen conceals a large potting shed and domestic area. There is a pathway and pedestrian gate leading onto Dog Lane.
AGENTS NOTES
The driveway leading in from Record Street is in the ownership of the property and two of the neighbouring property have a right of access and parking to one side, before the timber gates which lead in to Mulberry Cottage. There is a pedestrian gate on to Dog Lane. the stone walls to this area are Listed as we understand they form part of the original historic town walls.
DIRECTIONS
From the agents office proceed across The Square and turn left onto Castle Street. Take the first left into Record Street and the entrance is on the right after some 150 metres.
COUNCIL TAX
Denbighshire County Council - Tax Band G
TENURE
Freehold.
*ANTI MONEY LAUNDERING REGULATIONS
Before we can confirm any sale, we are required to verify everyone’s identity electronically to comply with Government Regulations relating to anti-money laundering. All intending buyers and sellers need to provide identification documentation to satisfy these requirements.
There is an admin fee of £30 per person for this process. Your early attention to supply the documents requested and payment will be appreciated, to avoid any unnecessary delays in confirming the sale agreed.
*MATERIAL INFORMATION REPORT
The Material Information Report for this property can be viewed on the Rightmove listing. Alternatively, a copy can be requested from our office which will be sent via email.
*EXTRA SERVICES - REFERRALS
Mortgage referrals, conveyancing referral and surveying referrals will be offered by Cavendish Estate Agents. If a buyer or seller should proceed with any of these services then a commission fee will be paid to Cavendish Estate Agents Ltd upon completion.
VIEWING
By appointment through the Agent's Ruthin office 01824 703030.
FLOOR PLANS - included for identification purposes only, not to scale.
HE/PMW
LOCATION

Mulberry Cottage stands in a unique and idyllic setting in the heart of the town. Built some 35 years ago in the grounds of one of the larger houses on Record Street it was designed to a very spacious plan with commodious rooms arranged around a lovely central galliered hall and landing. It does offer some scope for modernisation.
The position whilst very private is so convenient for the town centre with a wide range of shops and facilities within walking distance.
THE ACCOMMODATION COMPRISES

ENTRANCE PORCH

Outbuilt entrance porch with stone pillars and fine hardwood panelled door leading to entrance hall.
ENTRANCE HALL

Coved ceiling, wall light point, glazed door leading to inner hall. Twin glazed doors lead from the hall to the dining room.
Dimensions
Metric: 2.74m x 2.11m
Imperial: 9′ x 6’11”
INNER HALL

Radiator, meter cupboards, recess providing cloaks area with hooks and high level shelf, leaded effect window to front, panelled radiator.
Dimensions
Metric: 2.31m x 2.11m
Imperial: 7’7″ x 6’11”
CLOAKROOM

White suite comprising wash basin and low level WC, tiled floor, coved ceiling, radiator.
Dimensions
Metric: 2.26m x 1.40m
Imperial: 7’5″ x 4’7″
DINING ROOM

An attractive room with wall light points, leaded effect bow window overlooking the side garden and front garden, panelled radiator. Two further glazed doors to sitting room.
Dimensions
Metric: 4.83m x 3.68m
Imperial: 15’10” x 12’1″
SITTING ROOM

A very spacious and well lit room with a box bay window to gable and a wide double glazed sliding patio window opening to the easterly facing garden with splendid views across town to the Clwydian Hills. Coved ceiling, Adams style fireplace with decorative painted surround, metal insert and marble hearth. Wall light points, panelled radiator.
Dimensions
Metric: 6.65m x 4.88m
Imperial: 21’10” x 16′
INNER HALL/GALLERIED LANDING

Fine galleried landing, turned staircase with understairs storage, high level Velux roof light, panelled radiator.
Dimensions
Metric: 3.94m x 3.02m
Imperial: 12’11” x 9’11”
DAY LOUNGE

Well lit with a wide double glazed sliding patio window opening to the easterly facing garden with far reaching views across town towards the Clwydian Hills, Adams style fireplace with pine surround, decorative inset fireplace with tiling, hearth and Living Flame gas fire, fitted bookshelves and cabinets to recess, coved ceiling, wall light points, panelled radiator.
Dimensions
Metric: 4.83m x 3.30m
Imperial: 15’10” x 10’10”
KITCHEN/BREAKFAST ROOM

Fitted with a modern range of base and wall mounted cupboards and drawers with a light cream tone finish to door and drawer fronts and contrasting stone effect working surfaces to include a peninsula divide, inset one and half bowl sink with mixer tap and drainer, inset four ring electric hob with stainless steel and glass extractor hood and light above, integrated double oven, fridge, freezer and dishwasher. Two double glazed windows, panelled radiator. Built-in double door pantry cupboard with shelving, further walk-in pantry with window, wall shelving.
Dimensions
Metric: 4.90m x 3.86m max
Imperial: 16’1″ x 12’8″ max
SIDE PORCH

Double glazed window and door.
UTILITY ROOM

Fitted worktop with inset sink, void and plumbing for washing machine, fitted wall cabinets, panelled radiator. Ideal Mexico 2 gas boiler providing heating and hot water, panelled radiator.
Dimensions
Metric: 3.33m x 2.13m
Imperial: 10’11” x 7′
BEDROOM ONE

A spacious double room with wide double glazed window, coved ceiling, wall light points, panelled radiator.
Dimensions
Metric: 5.54m x 3.63m
Imperial: 18’2″ x 11’11”
DRESSING ROOM

Walk-in dressing room with fitted wardrobes to either side providing a combination of hanging rails and shelving and locker storage cupboards above, double glazed window, panelled radiator.
EN SUITE BATHROOM

White suite comprising panelled bath with grip handles, separate walk-in shower cubicle with smoked glass screen and high output shower, pedestal wash basin and WC, part tiled walls, double glazed window, panelled radiator.
Dimensions
Metric: 2.74m x 2.74m
Imperial: 9′ x 9′
FIRST FLOOR LANDNIG

Side area with double door airing cupboard with slatted shelving, further cupboard area beyond.
BEDROOM TWO

Leaded effect double glazed window to side, partially vaulted ceiling with large walk-in under eaves cupboard, panelled radiator.
Dimensions
Metric: 5.46m x 4.47m
Imperial: 17’11” x 14’8″
BEDROOM THREE

Spacious double room with wide double glazed window affording a splendid east and southerly aspect across Ruthin towards the Clwydian Hills, partially vaulted ceiling, large walk-in under eaves storage cupboard, panelled radiator.
Dimensions
Metric: 5.41m x 3.96m
Imperial: 17’9″ x 13′
BATHROOM

White suite comprising panelled bath with grip handles, separate walk-in shower cubicle with smoked glass screen and high output shower, pedestal wash basin and WC, double glazed window with a northerly aspect across town towards the Clwydian Hills, panelled radiator.
Dimensions
Metric: 3.68m x 2.29m
Imperial: 12’1″ x 7’6″
OUTSIDE

The property stands in a very secluded setting between Record Street and Dog Lane in the heart of Ruthin. I

It is approached via a stone arched entrance off Record Street via a shared tarmacadam driveway which leads to two timber panelled gates which open to the tarmacadam drive and parking area to the side of the house. The house stands within grounds of about 0.3 acre set within the original stone walls of Ruthin which form the boundary to the southern side adjoining Dog Lane.

It is a very private setting being mainly lawned with a copper beech tree, fruit trees and established shrubbery borders. A conifer screen conceals a large potting shed and domestic area. There is a pathway and pedestrian gate leading onto Dog Lane.
AGENTS NOTES

The driveway leading in from Record Street is in the ownership of the property and two of the neighbouring property have a right of access and parking to one side, before the timber gates which lead in to Mulberry Cottage. There is a pedestrian gate on to Dog Lane. the stone walls to this area are Listed as we understand they form part of the original historic town walls.
DIRECTIONS

From the agents office proceed across The Square and turn left onto Castle Street. Take the first left into Record Street and the entrance is on the right after some 150 metres.
COUNCIL TAX

Denbighshire County Council - Tax Band G
TENURE

Freehold.
*ANTI MONEY LAUNDERING REGULATIONS

Before we can confirm any sale, we are required to verify everyone’s identity electronically to comply with Government Regulations relating to anti-money laundering. All intending buyers and sellers need to provide identification documentation to satisfy these requirements.
There is an admin fee of £30 per person for this process. Your early attention to supply the documents requested and payment will be appreciated, to avoid any unnecessary delays in confirming the sale agreed.
*MATERIAL INFORMATION REPORT

The Material Information Report for this property can be viewed on the Rightmove listing. Alternatively, a copy can be requested from our office which will be sent via email.
*EXTRA SERVICES - REFERRALS

Mortgage referrals, conveyancing referral and surveying referrals will be offered by Cavendish Estate Agents. If a buyer or seller should proceed with any of these services then a commission fee will be paid to Cavendish Estate Agents Ltd upon completion.
VIEWING

By appointment through the Agent's Ruthin office 01824 703030.
FLOOR PLANS - included for identification purposes only, not to scale.
HE/PMW








