Cyffylliog, Ruthin, Offers Around 210000, Cottage - Semi Detached 2 Bedrooms, 2 bedrooms, 2 receptionsSOLD SUBJECT TO CONTACT
Offers Around

£210,000

Cyffylliog, Ruthin

Bedrooms  2
Bathrooms  1
Reception Rooms 2

Introduction

A charming two bedroom semi detached period cottage with modern conservatory and good size garden with views across surrounding countryside and adjoining mountain stream.Forming part of a delightful courtyard of only four cottages to the centre of this picturesque village some 5 miles from Ruthin with a local inn. This appealing cottage has benefited from refurbishment to a high standard to include replacement wood grain effect double glazed windows and modern electric panelled radiators, a luxury fitted kitchen/dining room and new conservatory. It affords a lovely fitted kitchen/dining room with an extensive range of cupboards and integrated appliances, twin doors leading through to a modern conservatory, an attractive sitting room with wood burning stove, two double bedrooms and bathroom with shower. New white painted shutters to all of the windows in the original cotttage, modern electric heating. Enclosed cottage gardens

LOCATION

Cyffylliog is a small rural village nestling in the valley of River Clywedog some 4.5 miles from Ruthin. The village is centred on the historic church together with a popular Inn, whilst the near by town provides a wide range of shopping facilities to include secondary school, library and some leisure facilities.

THE ACCOMMODATION COMPRISES

FRONT ENTRANCE

Georgian style and double glazed panelled door leading to luxury fitted kitchen/dining room.

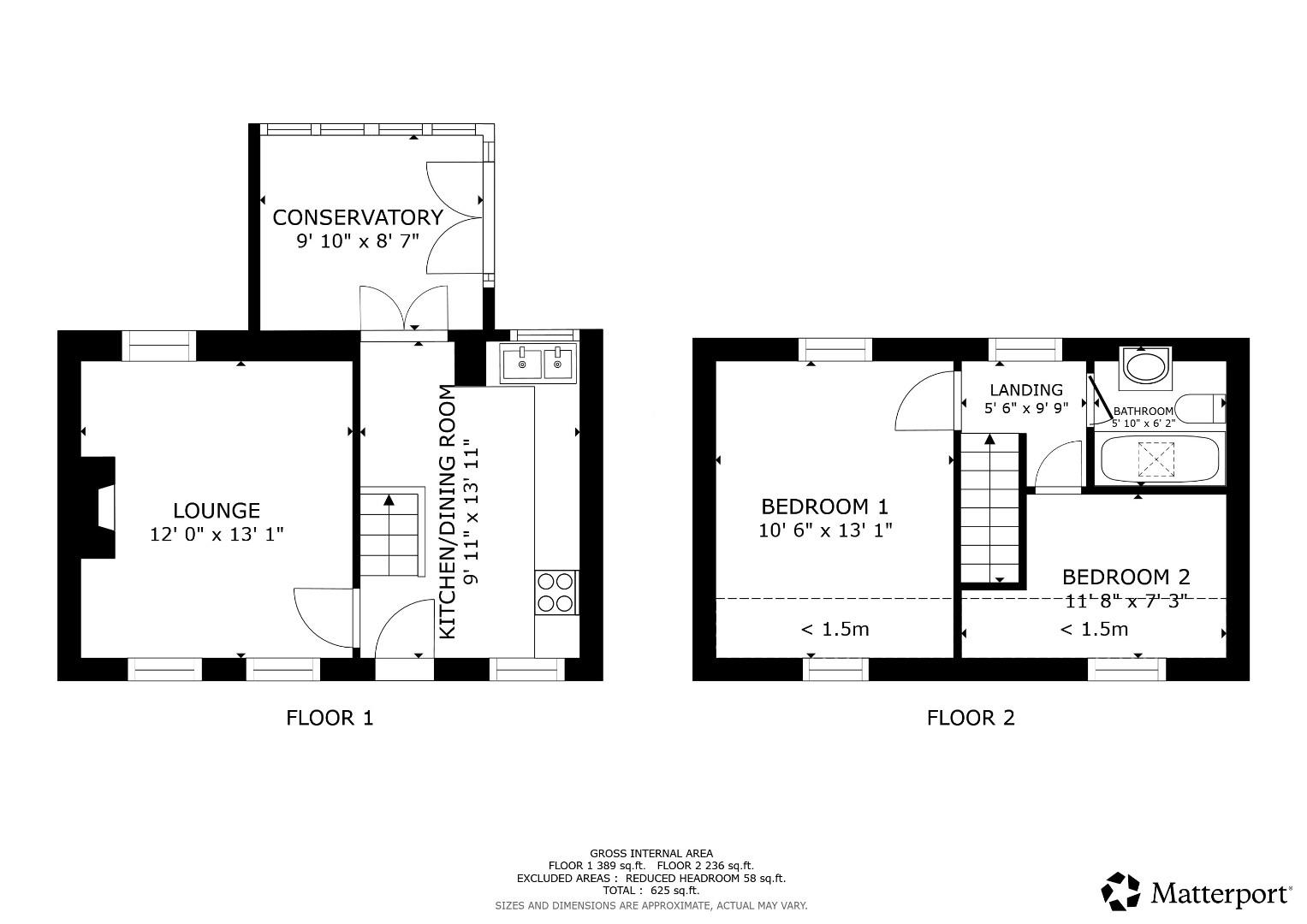
KITCHEN/DINING

Cyffylliog, Ruthin - KITCHEN/DINING

The kitchen is fitted with an extensive range of contemporary base and wall mounted cupboards and drawers in an off-white finish with pewter style knob, contrasting working surface with matching upstand and splashback. It includes an inset white enamelled sink with pewter style mixer tap, inset electric hob with concealed convector hood and light above, integrated oven, dishwasher, fridge, freezer, void and plumbing for washing machine. Ceiling downlighters, meter cupboard, modern sashes to double glazed cottage style windows to front, staircase rising off, red quarry tile flooring, electric panel radiator, twin glazed doors opening to conservatory.

Dimensions

Metric: 4.24m x 3.02m
Imperial: 13’11” x 9’11”

LOUNGE

Cyffylliog, Ruthin - LOUNGE

An attractive room with cottage style window to front also with modern shutters, matching window to rear, outbuilt fireplace with raised hearth and wood stove with beam over, fitted shelving to recess, wall light points, laminated oak flooring, electric panel radiator.

Dimensions

Metric: 3.99m x 3.66m
Imperial: 13’1″ x 12

CONSERVATORY

Cyffylliog, Ruthin - CONSERVATORY

With a new pitched roof with downlighters, new double glazed windows and matching glazed doors leading to pretty cottage style garden, woodgrain effect floor finish.

Dimensions

Metric: 3.00m x 2.62m
Imperial: 9’10” x 8’7″

FIRST FLOOR LANDING

Double glazed window with shutters.

BEDROOM ONE

Cyffylliog, Ruthin - BEDROOM ONE

An attractive room with high vaulted ceiling with exposed purlins, feature painted stone to the substantial chimney breast, two cottage style double glazed windows both with modern shutters, electric panel radiator.

Dimensions

Metric: 3.99m x 3.20m
Imperial: 13’1″ x 10’6″

BEDROOM TWO

Cyffylliog, Ruthin - BEDROOM TWO

High vaulted ceiling with exposed purlins, modern cottage style window with shutters and electric panel radiator.

Dimensions

Metric: 3.56m max x 2.21m
Imperial: 11’8″ max x 7’3″

BATHROOM

Cyffylliog, Ruthin - BATHROOM

White suite comprising panelled bath with glazed screen and high output shower over, round wash basin within limestone tiled surround and low level WC. High vaulted ceiling with Velux roof light, exposed purlin, downlighters, travertine style flooring, large chrome towel radiator.

Dimensions

Metric: 1.88m! x 1.78m
Imperial: 6’2! x 5’10”

OUTSIDE

The property is approached over a shared pathway with three neighbouring cottages and has access to the gable elevation leading through to the rear garden.

GARDEN

Cyffylliog, Ruthin - GARDEN

To the rear is a good sized and enclosed garden which enjoys a predominately southerly aspect with views over a small mountain stream, neighbouring fields and hillside. There is a central lawn with gravel pathway and shrubbery borders.

DIRECTIONS

From the agents Ruthin office proceed over St Peters Square and down Clwyd Street. On reaching the junction proceed straight ahead onto Mwrog Street and then over the mini roundabout and ten up the hill passing the Church on the right, and then take the next right thereafter signposted for Bontuchel and Cyffyliog. Follow the road for the next 4 miles until reaching Cyffyliog and on entering the village, turn left after the school whereby the property will be seen set back on the right hand side.

COUNCIL TAX

Denbighshire County Council - Tax Band C

TENURE

Freehold

*ANTI MONEY LAUNDERING REGULATIONS

Before we can confirm any sale, we are required to verify everyone’s identity electronically to comply with Government Regulations relating to anti-money laundering. All intending buyers and sellers need to provide identification documentation to satisfy these requirements.

There is an admin fee of £30 per person for this process. Your early attention to supply the documents requested and payment will be appreciated, to avoid any unnecessary delays in confirming the sale agreed.

*MATERIAL INFORMATION REPORT

The Material Information Report for this property can be viewed on the Rightmove listing. Alternatively, a copy can be requested from our office which will be sent via email.

*EXTRA SERVICES - REFERRALS

Mortgage referrals, conveyancing referral and surveying referrals will be offered by Cavendish Estate Agents. If a buyer or seller should proceed with any of these services then a commission fee will be paid to Cavendish Estate Agents Ltd upon completion.

VIEWING

By appointment through the Agent's Ruthin office 01824 703030.

FLOOR PLANS - included for identification purposes only, not to scale.

HE/PMW

LOCATION

Cyffylliog is a small rural village nestling in the valley of River Clywedog some 4.5 miles from Ruthin. The village is centred on the historic church together with a popular Inn, whilst the near by town provides a wide range of shopping facilities to include secondary school, library and some leisure facilities.

THE ACCOMMODATION COMPRISES

FRONT ENTRANCE

Georgian style and double glazed panelled door leading to luxury fitted kitchen/dining room.

KITCHEN/DINING

The kitchen is fitted with an extensive range of contemporary base and wall mounted cupboards and drawers in an off-white finish with pewter style knob, contrasting working surface with matching upstand and splashback. It includes an inset white enamelled sink with pewter style mixer tap, inset electric hob with concealed convector hood and light above, integrated oven, dishwasher, fridge, freezer, void and plumbing for washing machine. Ceiling downlighters, meter cupboard, modern sashes to double glazed cottage style windows to front, staircase rising off, red quarry tile flooring, electric panel radiator, twin glazed doors opening to conservatory.

Dimensions

Metric: 4.24m x 3.02m
Imperial: 13’11” x 9’11”

LOUNGE

An attractive room with cottage style window to front also with modern shutters, matching window to rear, outbuilt fireplace with raised hearth and wood stove with beam over, fitted shelving to recess, wall light points, laminated oak flooring, electric panel radiator.

Dimensions

Metric: 3.99m x 3.66m
Imperial: 13’1″ x 12

CONSERVATORY

With a new pitched roof with downlighters, new double glazed windows and matching glazed doors leading to pretty cottage style garden, woodgrain effect floor finish.

Dimensions

Metric: 3.00m x 2.62m
Imperial: 9’10” x 8’7″

FIRST FLOOR LANDING

Double glazed window with shutters.

BEDROOM ONE

An attractive room with high vaulted ceiling with exposed purlins, feature painted stone to the substantial chimney breast, two cottage style double glazed windows both with modern shutters, electric panel radiator.

Dimensions

Metric: 3.99m x 3.20m
Imperial: 13’1″ x 10’6″

BEDROOM TWO

High vaulted ceiling with exposed purlins, modern cottage style window with shutters and electric panel radiator.

Dimensions

Metric: 3.56m max x 2.21m
Imperial: 11’8″ max x 7’3″

BATHROOM

White suite comprising panelled bath with glazed screen and high output shower over, round wash basin within limestone tiled surround and low level WC. High vaulted ceiling with Velux roof light, exposed purlin, downlighters, travertine style flooring, large chrome towel radiator.

Dimensions

Metric: 1.88m! x 1.78m
Imperial: 6’2! x 5’10”

OUTSIDE

The property is approached over a shared pathway with three neighbouring cottages and has access to the gable elevation leading through to the rear garden.

GARDEN

To the rear is a good sized and enclosed garden which enjoys a predominately southerly aspect with views over a small mountain stream, neighbouring fields and hillside. There is a central lawn with gravel pathway and shrubbery borders.

DIRECTIONS

From the agents Ruthin office proceed over St Peters Square and down Clwyd Street. On reaching the junction proceed straight ahead onto Mwrog Street and then over the mini roundabout and ten up the hill passing the Church on the right, and then take the next right thereafter signposted for Bontuchel and Cyffyliog. Follow the road for the next 4 miles until reaching Cyffyliog and on entering the village, turn left after the school whereby the property will be seen set back on the right hand side.

COUNCIL TAX

Denbighshire County Council - Tax Band C

TENURE

Freehold

*ANTI MONEY LAUNDERING REGULATIONS

Before we can confirm any sale, we are required to verify everyone’s identity electronically to comply with Government Regulations relating to anti-money laundering. All intending buyers and sellers need to provide identification documentation to satisfy these requirements.

There is an admin fee of £30 per person for this process. Your early attention to supply the documents requested and payment will be appreciated, to avoid any unnecessary delays in confirming the sale agreed.

*MATERIAL INFORMATION REPORT

The Material Information Report for this property can be viewed on the Rightmove listing. Alternatively, a copy can be requested from our office which will be sent via email.

*EXTRA SERVICES - REFERRALS

Mortgage referrals, conveyancing referral and surveying referrals will be offered by Cavendish Estate Agents. If a buyer or seller should proceed with any of these services then a commission fee will be paid to Cavendish Estate Agents Ltd upon completion.

VIEWING

By appointment through the Agent's Ruthin office 01824 703030.

FLOOR PLANS - included for identification purposes only, not to scale.

HE/PMW

Book A Viewing