SOLD£495,000
  SOLDCerrigydrudion, Corwen
Introduction
AN ATTRACTIVE THREE BEDROOM DOUBLE FRONTED DETACHED HOUSE recently the subject of extensive modernisation and refurbishment to provide a highly appointed family home benefiting from a newly installed air source heating system, water based solar power system and underfloor heating to the majority. The accommodation affords outbuilt porch with cloakroom and WC, inner hall with staircase, attractive lounge with wood burning stove, large sun lounge with three double glazed French doors opening to the gardens, luxury fitted kitchen/dining room, side hall/ utility room, potential shower room/cloakroom. First floor landing, main bedroom with fitted wardrobes and en suite luxury shower room, two further double bedrooms, luxury family bathroom. Extensive grounds with a substantial stone built barn with new refurbished occasional bedroom, a further converted barn used as a hobby room and detached garage. Set in a very secluded setting in the heart of rolling countryside within extensive grounds of about 0.5 acre, it enjoys splendid far reaching views.Viewing highly recommended.
LOCATION
The property stands in a very secluded rural environment in the heart of rolling countryside in a secluded valley some 2.5 miles south-west of the A5 and Cerrigydrudion. The nearby town stands on the road junction with the A5105 Ruthin road and is close to the Brenig reservoir. The village has a general store, primary school, and two popular inns together with secondary education available in Bala, Ruthin and Betws Y Coed.
THE ACCOMMODATION COMPRISES
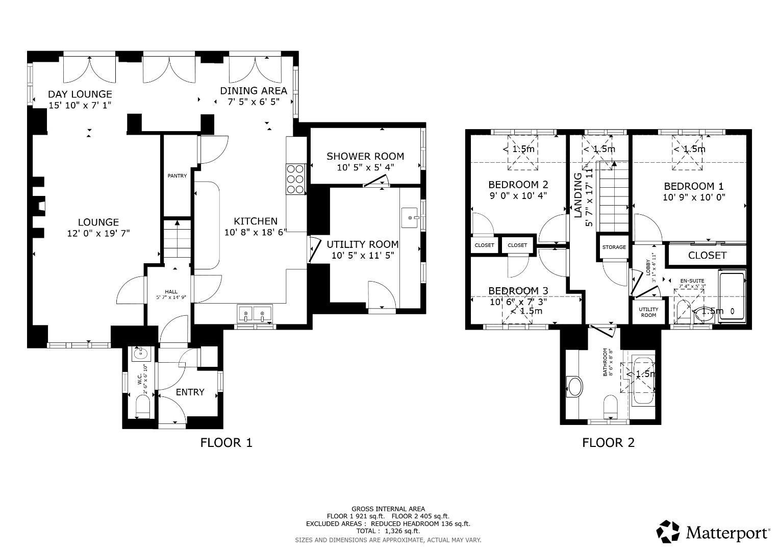
PORCH
Canopy entrance with woodgrain effect composite door leading to outbuilt and enclosed porch with storage box to one side, open recess with electric meter, double glazed window, riven stone flooring.
Dimensions
Metric: 1.96m x 1.68m
Imperial: 6’5″ x 5’6″
CLOAKROOM
Contemporary suite with wall mounted wash basin and storage drawer with mosaic tiled splashback, matching flooring, WC, double glazed window, glazed and oak panelled door leading to central hall.
CENTRAL HALL
Staircase rising off, matching flooring with underfloor heating.
LOUNGE

A very spacious room which extends into the adjoining sun lounge. The lounge area has a deep recessed fireplace with raised hearth and a Villager multi fuel fire grate with feature beam over. Double glazed window to front with deep hardwood sill, engineered oak flooring with underfloor heating, TV point. Square archway to adjoining sun lounge.
Dimensions
Metric: 5.97m x 3.66m
Imperial: 19’7 x 12′
SUN LOUNGE/DINING AREA

A delightful room which is designed to take full advantage of the far reaching northerly to north westerly views across the valley towards Eryri, - great for some amazing sunsets !!..with three quarter depth double glazed French doors opening out and two further double glazed windows one to either gable. In part it has engineered oak wood flooring, whilst the remainder has a riven stone flooring which also extends into the adjoining kitchen, ceiling downlighters.
Dimensions
Metric: 7.11m x 2.16m
Imperial: 23’4 x 7’1
KITCHEN

A large room which is extensively fitted with a contemporary range of base and wall mounted cupboards and drawers with a light tone finish to the majority of doors and drawers to a shaker style with polished granite working surfaces.
Dimensions
Metric: 5.64m x 3.25m
Imperial: 18’6 x 10’8

It includes a wide recess for a range style cooker with granite upstand and mock chimney breast with concealed extractor hood and light. Integrated dishwasher, inset one and half bowl stainless steel Franke sink with mixer tap, electric instant hot water supply to one side, further cabinet to a shaker style with contrasting grey toned finish with integrated fridge, storage cabinets, pull out drawers and solid oak worktop, ceiling downlighters, riven stone flooring, enclosed understairs cupboard. Glazed door leading through to the side hall utility room.
SIDE HALL/UTILITY ROOM

Modern stable style door to front, fitted oak working surface with void and plumbing for washing machine, granite worktop with white glazed Belfast sink with pewter style mixer tap, space for upright fridge/freezer, matching flooring with underfloor heating to kitchen, ceiling downlighters, two double glazed windows.
Dimensions
Metric: 3.48m x 3.18m
Imperial: 11’5 x 10’5
POTENTIAL SHOWER ROOM
Currently used as a general store, it has a wet floor system with central vent, tiling, half tiled walls, double glazed window, downlighters.
Dimensions
Metric: 3.18m x1.63m
Imperial: 10’5 x5’4
FIRST FLOOR LANDING
Partially vaulted ceiling with Velux roof light and downlighters, double glazed window with stunning northerly views across the valley, fitted linen cupboard, radiator.
INNER LOBBY
Built-in linen cupboard.
BEDROOM ONE

Vaulted ceiling with downlighters, Velux roof light, north facing picture window with deep hardwood sill, built-in three-section sliding door wardrobe with locker storage cupboards over, panelled radiator.
Dimensions
Metric: 3.28m x 3.05m
Imperial: 10’9 x 10′
EN SUITE SHOWER ROOM

Luxury white suite comprising floor level full width tray with glazed screen and high output shower, pedestal wash basin and WC, travertine floor and wall tiling with vaulted ceiling, Velux roof light, downlighters, double glazed window, electric underfloor heating, anthracite coloured towel radiator, mirror fronted cabinet.
Dimensions
Metric: 2.24m x 1.60m
Imperial: 7’4 x 5’3
BEDROOM TWO

Double glazed window with northerly aspect, Velux roof light, partially vaulted ceiling with downlighters, built-in wardrobe, radiator.
Dimensions
Metric: 3.15m x 2.74m
Imperial: 10’4 x 9′
BEDROOM THREE

Vaulted ceiling with Velux roof light, downlighters, double glazed window with deep sill, built-in wardrobe, radiator.
Dimensions
Metric: 3.20m x 2.21m
Imperial: 10’6 x 7’3
BATHROOM

Luxury white suite comprising P-shaped bath with glazed screen and high output shower, fitted cabinet incorporating wash basin with storage unit beneath and low level WC, travertine tiled walls and flooring, vaulted ceiling, downlighters, two Velux roof lights, double glazed window, electric underfloor heating.
Dimensions
Metric: 2.64m x 2.59m
Imperial: 8’8 x 8’6
OUTSIDE
The property stands in a very rural setting approached over a long private and unmade lane which extends through farmland over which we understand there is a right of way. The lane leads down to one side of the house where there is a fire bar gate opening to a gravelled drive which extends across the front of the barn and to the front of the house providing extensive space for parking.
MAIN OUTBUILDING

The main building is located to one side and provides a substantial stone built barn formerly a shipon, stables and loose box. It benefits from two upper floor rooms approached externally and overall provides a very useful building with electric light and power in the main.
Dimensions
Metric: 7.32m x 4.60m, 4.39m x 3.28m, 6.40m x 4.27m
Imperial: 24′ x 15’1″, 14’5″ x 10’9″, 21′ x 14′

Externally, there are stone steps leading up to the two first floor rooms, the main has been converted to provide an occasional bedroom with electric light and power installed. We understand the property had benefited from Planning Consent for conversion to provide a holiday cottage but the Planning Consent lapsed some years ago.
GARDEN ROOM

A further stone building which has been partially converted to provide a garden room/party room with electric light and power installed, wood stove, lean-to open fronted log store to one end with compost toilet.
Dimensions
Metric: 5.49m x 2.74m
Imperial: 18′ x 9′
GARDENS AND VIEWS

The property stands within informal gardens which extend in total to about 0.5 acre. They are mainly to the northern and southern side of the house and providing sloping lawns from which there are truly delightful views across rolling countryside. There is a wide patio to one side of the house together with a recently built treehouse platform with ladder to one of the more established trees.
VIEWS ACROSS THE VALLEY

DOUBLE GARAGE
To the rear of the barn is a detached pre-fabricated double garage with secondary gated entrance leading in together with a block and stone open fronted log store.
SERVICES
We understand the property is connected to mains electricity. Private water supply with a recently installed borehole located within the central yard with mechanical and ultraviolet filtration. Private drainage system.
DIRECTIONS
From the agent's Ruthin office take the B5105 Cerrigydrudion road. After some 14 miles and on entering Cerrigydrudion bear left in its centre and left again onto King Street. Turn immediately right to the front of the former shop and follow the road down to the X-roads with the A5. Proceed directly across towards Cwmpennaner. Follow the road up the hill and take the first left hand turning. Continue on this country lane towards Fron Goch for approximately 2 miles whereupon the gated entrance to the property will be found on the right hand side near the brow of the hill and just before a farm building set back on the left and the brow of the hill.
COUNCIL TAX
Conwy County Council - Council Tax Band C.
TENURE
Freehold.
*ANTI MONEY LAUNDERING REGULATIONS
Before we can confirm any sale, we are required to verify everyone’s identity electronically to comply with Government Regulations relating to anti-money laundering. All intending buyers and sellers need to provide identification documentation to satisfy these requirements.
There is an admin fee of £30 per person for this process. Your early attention to supply the documents requested and payment will be appreciated, to avoid any unnecessary delays in confirming the sale agreed.
*MATERIAL INFORMATION REPORT
The Material Information Report for this property can be viewed on the Rightmove listing. Alternatively, a copy can be requested from our office which will be sent via email.
*EXTRA SERVICES - REFERRALS
Mortgage referrals, conveyancing referral and surveying referrals will be offered by Cavendish Estate Agents. If a buyer or seller should proceed with any of these services then a commission fee will be paid to Cavendish Estate Agents Ltd upon completion.
VIEWINGS
By appointment through the Agent's Ruthin office 01824 703030.
FLOOR PLANS - included for identification purposes only, not to scale.
HE/PMW
LOCATION

The property stands in a very secluded rural environment in the heart of rolling countryside in a secluded valley some 2.5 miles south-west of the A5 and Cerrigydrudion. The nearby town stands on the road junction with the A5105 Ruthin road and is close to the Brenig reservoir. The village has a general store, primary school, and two popular inns together with secondary education available in Bala, Ruthin and Betws Y Coed.
THE ACCOMMODATION COMPRISES

PORCH

Canopy entrance with woodgrain effect composite door leading to outbuilt and enclosed porch with storage box to one side, open recess with electric meter, double glazed window, riven stone flooring.
Dimensions
Metric: 1.96m x 1.68m
Imperial: 6’5″ x 5’6″
CLOAKROOM

Contemporary suite with wall mounted wash basin and storage drawer with mosaic tiled splashback, matching flooring, WC, double glazed window, glazed and oak panelled door leading to central hall.
CENTRAL HALL

Staircase rising off, matching flooring with underfloor heating.
LOUNGE

A very spacious room which extends into the adjoining sun lounge. The lounge area has a deep recessed fireplace with raised hearth and a Villager multi fuel fire grate with feature beam over. Double glazed window to front with deep hardwood sill, engineered oak flooring with underfloor heating, TV point. Square archway to adjoining sun lounge.
Dimensions
Metric: 5.97m x 3.66m
Imperial: 19’7 x 12′
SUN LOUNGE/DINING AREA

A delightful room which is designed to take full advantage of the far reaching northerly to north westerly views across the valley towards Eryri, - great for some amazing sunsets !!..with three quarter depth double glazed French doors opening out and two further double glazed windows one to either gable. In part it has engineered oak wood flooring, whilst the remainder has a riven stone flooring which also extends into the adjoining kitchen, ceiling downlighters.
Dimensions
Metric: 7.11m x 2.16m
Imperial: 23’4 x 7’1
KITCHEN

A large room which is extensively fitted with a contemporary range of base and wall mounted cupboards and drawers with a light tone finish to the majority of doors and drawers to a shaker style with polished granite working surfaces.
Dimensions
Metric: 5.64m x 3.25m
Imperial: 18’6 x 10’8

It includes a wide recess for a range style cooker with granite upstand and mock chimney breast with concealed extractor hood and light. Integrated dishwasher, inset one and half bowl stainless steel Franke sink with mixer tap, electric instant hot water supply to one side, further cabinet to a shaker style with contrasting grey toned finish with integrated fridge, storage cabinets, pull out drawers and solid oak worktop, ceiling downlighters, riven stone flooring, enclosed understairs cupboard. Glazed door leading through to the side hall utility room.
SIDE HALL/UTILITY ROOM

Modern stable style door to front, fitted oak working surface with void and plumbing for washing machine, granite worktop with white glazed Belfast sink with pewter style mixer tap, space for upright fridge/freezer, matching flooring with underfloor heating to kitchen, ceiling downlighters, two double glazed windows.
Dimensions
Metric: 3.48m x 3.18m
Imperial: 11’5 x 10’5
POTENTIAL SHOWER ROOM

Currently used as a general store, it has a wet floor system with central vent, tiling, half tiled walls, double glazed window, downlighters.
Dimensions
Metric: 3.18m x1.63m
Imperial: 10’5 x5’4
FIRST FLOOR LANDING

Partially vaulted ceiling with Velux roof light and downlighters, double glazed window with stunning northerly views across the valley, fitted linen cupboard, radiator.
INNER LOBBY

Built-in linen cupboard.
BEDROOM ONE

Vaulted ceiling with downlighters, Velux roof light, north facing picture window with deep hardwood sill, built-in three-section sliding door wardrobe with locker storage cupboards over, panelled radiator.
Dimensions
Metric: 3.28m x 3.05m
Imperial: 10’9 x 10′
EN SUITE SHOWER ROOM

Luxury white suite comprising floor level full width tray with glazed screen and high output shower, pedestal wash basin and WC, travertine floor and wall tiling with vaulted ceiling, Velux roof light, downlighters, double glazed window, electric underfloor heating, anthracite coloured towel radiator, mirror fronted cabinet.
Dimensions
Metric: 2.24m x 1.60m
Imperial: 7’4 x 5’3
BEDROOM TWO

Double glazed window with northerly aspect, Velux roof light, partially vaulted ceiling with downlighters, built-in wardrobe, radiator.
Dimensions
Metric: 3.15m x 2.74m
Imperial: 10’4 x 9′
BEDROOM THREE

Vaulted ceiling with Velux roof light, downlighters, double glazed window with deep sill, built-in wardrobe, radiator.
Dimensions
Metric: 3.20m x 2.21m
Imperial: 10’6 x 7’3
BATHROOM

Luxury white suite comprising P-shaped bath with glazed screen and high output shower, fitted cabinet incorporating wash basin with storage unit beneath and low level WC, travertine tiled walls and flooring, vaulted ceiling, downlighters, two Velux roof lights, double glazed window, electric underfloor heating.
Dimensions
Metric: 2.64m x 2.59m
Imperial: 8’8 x 8’6
OUTSIDE

The property stands in a very rural setting approached over a long private and unmade lane which extends through farmland over which we understand there is a right of way. The lane leads down to one side of the house where there is a fire bar gate opening to a gravelled drive which extends across the front of the barn and to the front of the house providing extensive space for parking.
MAIN OUTBUILDING

The main building is located to one side and provides a substantial stone built barn formerly a shipon, stables and loose box. It benefits from two upper floor rooms approached externally and overall provides a very useful building with electric light and power in the main.
Dimensions
Metric: 7.32m x 4.60m, 4.39m x 3.28m, 6.40m x 4.27m
Imperial: 24′ x 15’1″, 14’5″ x 10’9″, 21′ x 14′

Externally, there are stone steps leading up to the two first floor rooms, the main has been converted to provide an occasional bedroom with electric light and power installed. We understand the property had benefited from Planning Consent for conversion to provide a holiday cottage but the Planning Consent lapsed some years ago.
GARDEN ROOM

A further stone building which has been partially converted to provide a garden room/party room with electric light and power installed, wood stove, lean-to open fronted log store to one end with compost toilet.
Dimensions
Metric: 5.49m x 2.74m
Imperial: 18′ x 9′
GARDENS AND VIEWS

The property stands within informal gardens which extend in total to about 0.5 acre. They are mainly to the northern and southern side of the house and providing sloping lawns from which there are truly delightful views across rolling countryside. There is a wide patio to one side of the house together with a recently built treehouse platform with ladder to one of the more established trees.
VIEWS ACROSS THE VALLEY

DOUBLE GARAGE

To the rear of the barn is a detached pre-fabricated double garage with secondary gated entrance leading in together with a block and stone open fronted log store.
SERVICES

We understand the property is connected to mains electricity. Private water supply with a recently installed borehole located within the central yard with mechanical and ultraviolet filtration. Private drainage system.
DIRECTIONS

From the agent's Ruthin office take the B5105 Cerrigydrudion road. After some 14 miles and on entering Cerrigydrudion bear left in its centre and left again onto King Street. Turn immediately right to the front of the former shop and follow the road down to the X-roads with the A5. Proceed directly across towards Cwmpennaner. Follow the road up the hill and take the first left hand turning. Continue on this country lane towards Fron Goch for approximately 2 miles whereupon the gated entrance to the property will be found on the right hand side near the brow of the hill and just before a farm building set back on the left and the brow of the hill.
COUNCIL TAX

Conwy County Council - Council Tax Band C.
TENURE

Freehold.
*ANTI MONEY LAUNDERING REGULATIONS

Before we can confirm any sale, we are required to verify everyone’s identity electronically to comply with Government Regulations relating to anti-money laundering. All intending buyers and sellers need to provide identification documentation to satisfy these requirements.
There is an admin fee of £30 per person for this process. Your early attention to supply the documents requested and payment will be appreciated, to avoid any unnecessary delays in confirming the sale agreed.
*MATERIAL INFORMATION REPORT

The Material Information Report for this property can be viewed on the Rightmove listing. Alternatively, a copy can be requested from our office which will be sent via email.
*EXTRA SERVICES - REFERRALS

Mortgage referrals, conveyancing referral and surveying referrals will be offered by Cavendish Estate Agents. If a buyer or seller should proceed with any of these services then a commission fee will be paid to Cavendish Estate Agents Ltd upon completion.
VIEWINGS

By appointment through the Agent's Ruthin office 01824 703030.
FLOOR PLANS - included for identification purposes only, not to scale.
HE/PMW
















