
£660,000
Cae Babilon, Higher Kinnerton
Introduction
* LARGE DETACHED HOUSE WITH THREE RECEPTION ROOMS & FIVE BEDROOMS *A magnificent five bedroom detached house forming part of an exclusive development in the sought-after village of Higher Kinnerton. The property opens with an inviting porch and a generous reception hall featuring a central staircase. The ground floor includes a cloakroom/WC, an exceptional open-plan breakfast kitchen and sitting area complete with a contemporary log burner and twin sets of French doors leading out to the rear garden. There is also a separate living room, formal dining room and a dedicated study. A striking galleried landing, with French doors to a small balcony, leads to the principal bedroom, which boasts a dressing area and a luxurious en-suite bathroom with a separate shower. The second bedroom/guest suite features fitted wardrobes and its own en-suite shower room. Three further well-proportioned bedrooms and a family bathroom with separate shower complete the first floor. The home benefits from gas central heating and UPVC double glazing. Externally, the front offers a neat lawned garden with mature planting, while a tarmac driveway to the side provides access to a detached double garage with twin up-and-over doors. The fully enclosed rear garden enjoys a sunny south-easterly aspect and a high degree of privacy, featuring a large lawn, flagged patio, pathways, and a split-level decked seating area with summerhouse. A superb opportunity for those seeking a modern, turnkey home in a desirable village setting – early viewing is highly recommended.
LOCATION
The village of Higher Kinnerton is located on the Welsh/Cheshire border. Chester City centre is easily accessible by car, together with the Chester Business Park and the A55 North Wales Expressway allowing daily commuting to the various commercial and industrial centres of the region. The village centre has a shop, pubs, and a well regarded primary school. Buses run into Chester and Broughton and the A55 North Wales Expressway is within a few minutes' drive. The Broughton Retail Park with its Tesco superstore, a range of High Street shopping outlets and a recently opened cinema complex is approximately 2 miles away.
THE ACCOMMODATION COMPRISES:
PORCH
Covered porch with outside light. Composite double glazed entrance door with full height double glazed side panels to the reception hallway.
RECEPTION HALLWAY

Spacious reception hallway with central spindled staircase to the first floor, ceiling light point, mains connected smoke alarm, single radiator, vinyl wood effect flooring, burglar alarm control pad, and useful built-in storage cupboard. Doors to the breakfast kitchen/sitting room, dining room, living room, study and downstairs WC.
DOWNSTAIRS WC

White suite with chrome style fittings comprising: low level dual-flush WC; and pedestal wash hand basin with mixer tap. Part-tiled walls, vinyl tile effect flooring, single radiator with thermostat, ceiling light point, extractor, and UPVC double glazed window with obscured glass.
LIVING ROOM

UPVC double glazed French doors to the rear garden with full height double glazed windows at each side, two ceiling light points, two single radiators with thermostats, vinyl wood effect flooring, TV aerial point, and telephone point.
Dimensions
Metric: 5.61m x 3.73m
Imperial: 18’5″ x 12’3″
STUDY

UPVC double glazed bay window overlooking the front with shutters, single radiator with thermostat, ceiling light point, and vinyl wood effect flooring.
Dimensions
Metric: 3.53m x 2.31m plus bay
Imperial: 11’7″ x 7’7″ plus bay
DINING ROOM

UPVC double glazed bay window overlooking the front with shutters, useful walk-in storage cupboard, ceiling light point with dimmer switch control, single radiator with thermostat, and vinyl wood effect strip flooring. Connecting door to the breakfast kitchen.
Dimensions
Metric: 3.25m plus recess x 3.35m
Imperial: 10’8″ plus recess x 11′
BREAKFAST KITCHEN/SITTING ROOM

Large open-plan breakfast kitchen and family room featuring a contemporary log burner and two sets of French doors to the rear garden.
BREAKFAST KITCHEN

Fitted with a comprehensive range of white high gloss fronted base and wall level units with chrome handles and granite worktops with matching upstands. Island unit with storage cupboards and granite worktop incorporating a breakfast bar with three pendant lights above. Fitted six-ring AEG gas hob with stainless steel splashback, chimney style extractor above, and built-in AEG electric double oven and grill. Integrated dishwasher, plumbing and space for American style fridge/freezer, recessed LED ceiling spotlights, mains connected heat alarm, provision for wall mounted flat screen television, under-cupboard spotlighting, LED kickboard lighting, double radiator with thermostat, tiled floor, built-in storage cupboard, and UPVC double glazed French doors to the rear garden. Doors to the dining room and utility room, and opening to the family room,
SITTING ROOM

Feature UPVC double glazed bay with French doors to the rear garden, contemporary log burning stove, ceiling light point, double radiator with thermostat, tiled floor, and useful built-in storage cupboard.
Dimensions
Metric: 3.12m x 2.95m plus bay
Imperial: 10’3″ x 9’8″ plus bay
UTILITY ROOM

Fitted with a matching double base unit with laminated worktop and matching upstands with inset single bowl stainless steel sink unit and drainer with chrome mixer tap. Plumbing and space for washing machine, space for tumble dryer, wall cupboard housing an Ideal Logic Heat 24 condensing gas fired central heating boiler, single radiator with thermostat, ceiling light point, tiled floor, built-in storage cupboard with hanging for cloaks, and composite double glazed door to outside.
Dimensions
Metric: 2.29m x 1.93m
Imperial: 7’6″ x 6’4″
FIRST FLOOR GALLERIED STYLE LANDNIG

Spindled balustrade, mains connected smoke alarms, single radiator with thermostat, access to loft space, built-in storage cupboard with shelving, and built-in cupboard housing the pressurised hot water cylinder. UPVC double glazed French doors with shutters leading out onto a small balcony, and doors to the principal bedroom, bedroom two, bedroom three, bedroom four, bedroom five and family bathroom.
BALCONY
With timber decking, brick walling and metal handrail overlooking the front.
PRINCIPAL BEDROOM

UPVC double glazed bay window with shutters overlooking the front, UPVC double glazed window with shutters to the side, two single radiators, ad ceiling light point. Opening to dressing room.
Dimensions
Metric: 4.47m x 3.61m plus bay
Imperial: 14’8″ x 11’10” plus bay
DRESSING ROOM
Fitted with a range of full height wardrobes incorporating hanging space and shelving and two recessed spotlights. Door to en-suite bathroom.
EN-SUITE BATHROOM

Luxuriously appointed suite in white with chrome style fittings comprising: double ended bath with floor mounted mixer tap and extendable shower attachment; wall mounted wash hand basin with mixer tap and two storage drawers beneath; low level dual-flush WC; and tiled shower enclosure with mixer shower, canopy style rain shower head, extendable shower attachment, glazed shower screen and sliding glazed door. Tiled floor, fully tiled walls, electric shaver point, extractor, recessed LED ceiling spotlights, chrome ladder style towel radiator, and UPVC double glazed window with obscured glass.
Dimensions
Metric: 3.05m max x 2.03m max
Imperial: 10′ max x 6’8″ max
BEDROOM TWO

Two UPVC double glazed windows overlooking the front with shutters, single radiator with thermostat, and ceiling light point.
Dimensions
Metric: 3.78m x 3.33m max
Imperial: 12’5″ x 10’11” max
BEDROOM THREE

Two UPVC double glazed windows overlooking the rear, single radiator with thermostat, ceiling light point, and two full height fitted double wardrobes with hanging space and shelving. Door to en-suite shower room.
Dimensions
Metric: 4.04m to front of wardrobes x 3.30m
Imperial: 13’3″ to front of wardrobes x 10’10”
EN-SUITE SHOWER ROOM
Modern white suite with chrome style fittings comprising: tiled shower enclosure with thermostatic mixer shower, glazed shower screen and sliding glazed door; pedestal wash hand basin with mixer tap' and low level dual-flush WC. Part-tiled walls, vinyl wood effect flooring, electric shaver point, ceiling light point, ladder style towel radiator with thermostat, and UPVC double glazed window with obscured glass.
Dimensions
Metric: 2.11m x 1.45m
Imperial: 6’11” x 4’9″
BEDROOM FOUR

UPVC double glazed window overlooking the rear, ceiling light point, and ingle radiator with thermostat.
Dimensions
Metric: 3.56m max x 3.00m max
Imperial: 11’8″ max x 9’10” max
BEDROOM FIVE

UPVC double glazed window overlooking the rear, double radiator with thermostat, and ceiling light point.
Dimensions
Metric: 3.02m plus door recess x 2.92m plus recess
Imperial: 9’11” plus door recess x 9’7″ plus recess
FAMILY BATHROOM

Modern white suite with chrome style fittings comprising: panelled bath with mixer tap, pedestal wash hand basin with mixer tap, low level dual flush WC and tiled shower enclosure with mixer shower, glazed shower screen and sliding glazed door. Part tiled walls, vinyl wood effect flooring, ladder style towel radiator, extractor, ceiling light point, UPVC double glazed window with obscured glass.
Dimensions
Metric: 2.82m x 1.93m
Imperial: 9’3″ x 6’4″
OUTSIDE FRONT
The property forms part of a small development within the popular village of Higher Kinnerton. To the front there is a neatly laid lawned garden with shrubbery, flagged pathways and decorative crushed slate. External gas and electric meter cupboards. A tarmac driveway at the side leads to a double garage. A wooden gate between the house and the garage provides access to the rear garden. External double power point, contemporary outside lighting, outside water tap.
DOUBLE GARAGE
Twin up and over garage doors, strip lighting, power, useful boarded loft area with retractable wooden ladder and light.
Dimensions
Metric: 5.33m x 5.18m
Imperial: 17’6″ x 17′
OUTSIDE REAR

To the rear there is a delightful lawned garden with flagged patio being enclosed by wooden boundary fencing together with a split level decked seating area and summerhouse. The garden enjoys a south-easterly aspect and is not directly overlooked.
DIRECTIONS
Proceed out of Chester over the Grosvenor Bridge to the Overleigh roundabout and take the third exit along Lache Lane. Continue into open countryside to the roundabout by Bodfari Foods and take the turning right towards Kinnerton, passing through Gorstella and Lower Kinnerton. On entering the village proceed past the All Saint's Church. Then take the turning left after Cannon Way into Cae Babilon. Follow the road around to the right and the property will be found on the left hand side.
TENURE
* Tenure - understood to be Freehold. Purchasers should verify this through their solicitor.
COUNCIL TAX
* Council Tax Band G - Flintshire County Council.
AGENT'S NOTES
* We understand that there is a charge of approximately £55 paid twice a year to the Residential Maintenance Group for maintenance of the drainage and sewerage.
* The property is on a water meter.
* The property is protected by a burglar alarm system.
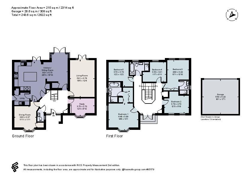
* Approximate floor areas: 215 sq m/2314 sq ft. Garage 28.6 sq m/308 sq ft. Total including garage 243.6 sq m/2622 sq ft.
*ANTI MONEY LAUNDERING REGULATIONS
Before we can confirm any sale, we are required to verify everyone’s identity electronically to comply with Government Regulations relating to anti-money laundering. All intending buyers and sellers need to provide identification documentation to satisfy these requirements.
There is an admin fee of £30 per person for this process. Your early attention to supply the documents requested and payment will be appreciated, to avoid any unnecessary delays in confirming the sale agreed.
MATERIAL INFORMATION REPORT
The Material Information Report for this property can be viewed on the Rightmove listing. Alternatively, a copy can be requested from our office which will be sent via email.
*EXTRA SERVICES - REFERRALS
Mortgage referrals, conveyancing referral and surveying referrals will be offered by Cavendish Estate Agents. If a buyer or seller should proceed with any of these services then a commission fee will be paid to Cavendish Estate Agents Ltd upon completion.
VIEWING
By appointment through the Agents Chester Office 01244 404040.
FLOOR PLANS - included for identification purposes only, not to scale.
PS/PMW
LOCATION

The village of Higher Kinnerton is located on the Welsh/Cheshire border. Chester City centre is easily accessible by car, together with the Chester Business Park and the A55 North Wales Expressway allowing daily commuting to the various commercial and industrial centres of the region. The village centre has a shop, pubs, and a well regarded primary school. Buses run into Chester and Broughton and the A55 North Wales Expressway is within a few minutes' drive. The Broughton Retail Park with its Tesco superstore, a range of High Street shopping outlets and a recently opened cinema complex is approximately 2 miles away.
THE ACCOMMODATION COMPRISES:

PORCH

Covered porch with outside light. Composite double glazed entrance door with full height double glazed side panels to the reception hallway.
RECEPTION HALLWAY

Spacious reception hallway with central spindled staircase to the first floor, ceiling light point, mains connected smoke alarm, single radiator, vinyl wood effect flooring, burglar alarm control pad, and useful built-in storage cupboard. Doors to the breakfast kitchen/sitting room, dining room, living room, study and downstairs WC.
DOWNSTAIRS WC

White suite with chrome style fittings comprising: low level dual-flush WC; and pedestal wash hand basin with mixer tap. Part-tiled walls, vinyl tile effect flooring, single radiator with thermostat, ceiling light point, extractor, and UPVC double glazed window with obscured glass.
LIVING ROOM

UPVC double glazed French doors to the rear garden with full height double glazed windows at each side, two ceiling light points, two single radiators with thermostats, vinyl wood effect flooring, TV aerial point, and telephone point.
Dimensions
Metric: 5.61m x 3.73m
Imperial: 18’5″ x 12’3″
STUDY

UPVC double glazed bay window overlooking the front with shutters, single radiator with thermostat, ceiling light point, and vinyl wood effect flooring.
Dimensions
Metric: 3.53m x 2.31m plus bay
Imperial: 11’7″ x 7’7″ plus bay
DINING ROOM

UPVC double glazed bay window overlooking the front with shutters, useful walk-in storage cupboard, ceiling light point with dimmer switch control, single radiator with thermostat, and vinyl wood effect strip flooring. Connecting door to the breakfast kitchen.
Dimensions
Metric: 3.25m plus recess x 3.35m
Imperial: 10’8″ plus recess x 11′
BREAKFAST KITCHEN/SITTING ROOM

Large open-plan breakfast kitchen and family room featuring a contemporary log burner and two sets of French doors to the rear garden.
BREAKFAST KITCHEN

Fitted with a comprehensive range of white high gloss fronted base and wall level units with chrome handles and granite worktops with matching upstands. Island unit with storage cupboards and granite worktop incorporating a breakfast bar with three pendant lights above. Fitted six-ring AEG gas hob with stainless steel splashback, chimney style extractor above, and built-in AEG electric double oven and grill. Integrated dishwasher, plumbing and space for American style fridge/freezer, recessed LED ceiling spotlights, mains connected heat alarm, provision for wall mounted flat screen television, under-cupboard spotlighting, LED kickboard lighting, double radiator with thermostat, tiled floor, built-in storage cupboard, and UPVC double glazed French doors to the rear garden. Doors to the dining room and utility room, and opening to the family room,
SITTING ROOM

Feature UPVC double glazed bay with French doors to the rear garden, contemporary log burning stove, ceiling light point, double radiator with thermostat, tiled floor, and useful built-in storage cupboard.
Dimensions
Metric: 3.12m x 2.95m plus bay
Imperial: 10’3″ x 9’8″ plus bay
UTILITY ROOM

Fitted with a matching double base unit with laminated worktop and matching upstands with inset single bowl stainless steel sink unit and drainer with chrome mixer tap. Plumbing and space for washing machine, space for tumble dryer, wall cupboard housing an Ideal Logic Heat 24 condensing gas fired central heating boiler, single radiator with thermostat, ceiling light point, tiled floor, built-in storage cupboard with hanging for cloaks, and composite double glazed door to outside.
Dimensions
Metric: 2.29m x 1.93m
Imperial: 7’6″ x 6’4″
FIRST FLOOR GALLERIED STYLE LANDNIG

Spindled balustrade, mains connected smoke alarms, single radiator with thermostat, access to loft space, built-in storage cupboard with shelving, and built-in cupboard housing the pressurised hot water cylinder. UPVC double glazed French doors with shutters leading out onto a small balcony, and doors to the principal bedroom, bedroom two, bedroom three, bedroom four, bedroom five and family bathroom.
BALCONY

With timber decking, brick walling and metal handrail overlooking the front.
PRINCIPAL BEDROOM

UPVC double glazed bay window with shutters overlooking the front, UPVC double glazed window with shutters to the side, two single radiators, ad ceiling light point. Opening to dressing room.
Dimensions
Metric: 4.47m x 3.61m plus bay
Imperial: 14’8″ x 11’10” plus bay
DRESSING ROOM

Fitted with a range of full height wardrobes incorporating hanging space and shelving and two recessed spotlights. Door to en-suite bathroom.
EN-SUITE BATHROOM

Luxuriously appointed suite in white with chrome style fittings comprising: double ended bath with floor mounted mixer tap and extendable shower attachment; wall mounted wash hand basin with mixer tap and two storage drawers beneath; low level dual-flush WC; and tiled shower enclosure with mixer shower, canopy style rain shower head, extendable shower attachment, glazed shower screen and sliding glazed door. Tiled floor, fully tiled walls, electric shaver point, extractor, recessed LED ceiling spotlights, chrome ladder style towel radiator, and UPVC double glazed window with obscured glass.
Dimensions
Metric: 3.05m max x 2.03m max
Imperial: 10′ max x 6’8″ max
BEDROOM TWO

Two UPVC double glazed windows overlooking the front with shutters, single radiator with thermostat, and ceiling light point.
Dimensions
Metric: 3.78m x 3.33m max
Imperial: 12’5″ x 10’11” max
BEDROOM THREE

Two UPVC double glazed windows overlooking the rear, single radiator with thermostat, ceiling light point, and two full height fitted double wardrobes with hanging space and shelving. Door to en-suite shower room.
Dimensions
Metric: 4.04m to front of wardrobes x 3.30m
Imperial: 13’3″ to front of wardrobes x 10’10”
EN-SUITE SHOWER ROOM

Modern white suite with chrome style fittings comprising: tiled shower enclosure with thermostatic mixer shower, glazed shower screen and sliding glazed door; pedestal wash hand basin with mixer tap' and low level dual-flush WC. Part-tiled walls, vinyl wood effect flooring, electric shaver point, ceiling light point, ladder style towel radiator with thermostat, and UPVC double glazed window with obscured glass.
Dimensions
Metric: 2.11m x 1.45m
Imperial: 6’11” x 4’9″
BEDROOM FOUR

UPVC double glazed window overlooking the rear, ceiling light point, and ingle radiator with thermostat.
Dimensions
Metric: 3.56m max x 3.00m max
Imperial: 11’8″ max x 9’10” max
BEDROOM FIVE

UPVC double glazed window overlooking the rear, double radiator with thermostat, and ceiling light point.
Dimensions
Metric: 3.02m plus door recess x 2.92m plus recess
Imperial: 9’11” plus door recess x 9’7″ plus recess
FAMILY BATHROOM

Modern white suite with chrome style fittings comprising: panelled bath with mixer tap, pedestal wash hand basin with mixer tap, low level dual flush WC and tiled shower enclosure with mixer shower, glazed shower screen and sliding glazed door. Part tiled walls, vinyl wood effect flooring, ladder style towel radiator, extractor, ceiling light point, UPVC double glazed window with obscured glass.
Dimensions
Metric: 2.82m x 1.93m
Imperial: 9’3″ x 6’4″
OUTSIDE FRONT

The property forms part of a small development within the popular village of Higher Kinnerton. To the front there is a neatly laid lawned garden with shrubbery, flagged pathways and decorative crushed slate. External gas and electric meter cupboards. A tarmac driveway at the side leads to a double garage. A wooden gate between the house and the garage provides access to the rear garden. External double power point, contemporary outside lighting, outside water tap.
DOUBLE GARAGE

Twin up and over garage doors, strip lighting, power, useful boarded loft area with retractable wooden ladder and light.
Dimensions
Metric: 5.33m x 5.18m
Imperial: 17’6″ x 17′
OUTSIDE REAR

To the rear there is a delightful lawned garden with flagged patio being enclosed by wooden boundary fencing together with a split level decked seating area and summerhouse. The garden enjoys a south-easterly aspect and is not directly overlooked.
DIRECTIONS

Proceed out of Chester over the Grosvenor Bridge to the Overleigh roundabout and take the third exit along Lache Lane. Continue into open countryside to the roundabout by Bodfari Foods and take the turning right towards Kinnerton, passing through Gorstella and Lower Kinnerton. On entering the village proceed past the All Saint's Church. Then take the turning left after Cannon Way into Cae Babilon. Follow the road around to the right and the property will be found on the left hand side.
TENURE

* Tenure - understood to be Freehold. Purchasers should verify this through their solicitor.
COUNCIL TAX

* Council Tax Band G - Flintshire County Council.
AGENT'S NOTES

* We understand that there is a charge of approximately £55 paid twice a year to the Residential Maintenance Group for maintenance of the drainage and sewerage.
* The property is on a water meter.
* The property is protected by a burglar alarm system.
* Approximate floor areas: 215 sq m/2314 sq ft. Garage 28.6 sq m/308 sq ft. Total including garage 243.6 sq m/2622 sq ft.
*ANTI MONEY LAUNDERING REGULATIONS

Before we can confirm any sale, we are required to verify everyone’s identity electronically to comply with Government Regulations relating to anti-money laundering. All intending buyers and sellers need to provide identification documentation to satisfy these requirements.
There is an admin fee of £30 per person for this process. Your early attention to supply the documents requested and payment will be appreciated, to avoid any unnecessary delays in confirming the sale agreed.
MATERIAL INFORMATION REPORT

The Material Information Report for this property can be viewed on the Rightmove listing. Alternatively, a copy can be requested from our office which will be sent via email.
*EXTRA SERVICES - REFERRALS

Mortgage referrals, conveyancing referral and surveying referrals will be offered by Cavendish Estate Agents. If a buyer or seller should proceed with any of these services then a commission fee will be paid to Cavendish Estate Agents Ltd upon completion.
VIEWING

By appointment through the Agents Chester Office 01244 404040.
FLOOR PLANS - included for identification purposes only, not to scale.
PS/PMW







