
£300,000
Betws Gwerfil Goch, Corwen
Introduction
An attractive 2 bedroom detached period house together with a very substantial Grade II listed stone barn, considered to date from the 16th century, likely an original long house & brye, located in the centre of this picturesque rural village in the heart of the Alwen valley some 2 miles from the A5 near Rhug.This unique home has been modernised to provide a very comfortable home combining a wealth of original features with impressive inglenook fireplace and beamed ceilings in part.The barn provides a substantial building, two storey in part with potential for conversion subject to consent.Entrance lobby, large open plan lounge and dining room, kitchen, utility area and shower room. large conservatory.First floor landing and two large double bedrooms. Gated entrance to side with parking area & courtyard garden.
LOCATION
Located in the centre of tghe village overlooking the historic church and square to this small rural village some 2 miles north east of the A5 at Maerdy almost equidistant between Corwen and Cerrigydrudion.
COMMUNITY FUND
We understand there is a substantial community fund available to property within the village under the Wern Ddu Community wind farm fund. Further details and how to make an application for the grant to improve the thermal insulation of properties is available on;
https://betwsgwerfylgoch.cymru/en/community-fund/
THE ACCOMMODATION COMPRISES
ENTRANCE LOBBY
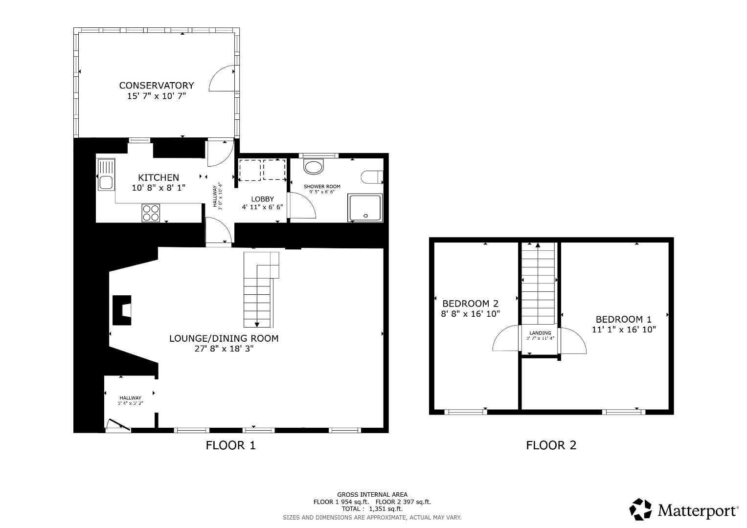
Panelled and Georgian style double glazed door leading to entrance lobby with slate slabbed floor, opening to splendid central lounge and dining room.
LOUNGE AND DINING ROOM

Forming part of the original cottage, it is an impressive room with three cottage style windows to front each with deep oak topped sills, heavy beamed ceiling with central open tread staircase rising off, impressive inglenook fireplace with supporting beam, stone hearth, large multi fuel stove, TV point, woodgrain effect floor finish, further wood stove to recessed fireplace with raised hearth, two panelled radiators.
Dimensions
Metric: 8.43m x 5.56m
Imperial: 27’8 x 18’3
KITCHEN

The kitchen is fitted with a modern range of base and wall mounted cupboards and drawers to a shaker style with cream tone finish to door and drawer fronts and contrasting woodgrain effect working surfaces to include inset one and half bowl sink with mixer tap and drainer, inset four ring electric hob together with integrated oven, extractor hood, glazed display cabinet, integrated dishwasher, terracotta style ceramic tiled flooring which extends into the side lobby and adjoining shower room.
Dimensions
Metric: 3.25m x 2.46m
Imperial: 10’8 x 8’1
SIDE LOBBY
Space for upright fridge/freezer, plumbing for washing machine, panelled radiator.
SHOWER ROOM

White suite comprising large shower tray with glazed screen and high output shower, pedestal wash basin and WC, two windows both with deep sills, downlighters, white enamelled towel radiator.
Dimensions
Metric: 2.87m x 1.98m
Imperial: 9’5 x 6’6
CONSERVATORY

A spacious room to the rear of the house, it has double glazed windows to three sides together with door leading out, pitched polycarbonate roof, matching flooring to kitchen, panelled radiator.
Dimensions
Metric: 4.75m x 3.23m
Imperial: 15’7 x 10’7
FIRST FLOOR LANDING
BEDROOM ONE

Partially vaulted ceiling, window to front with deep sill, panelled radiator, deep recess to one side providing open fronted wardrobe.
Dimensions
Metric: 5.13m x 3.38m
Imperial: 16’10 x 11’1
BEDROOM TWO

Part vaulted ceiling, deep recess to one side of the chimney breast, wall shelf, window with deep sill, panelled radiator.
Dimensions
Metric: 5.13m x 2.64m
Imperial: 16’10 x 8’8
DETACHED BARN

A very substantial detached stone barn dating from pre 1800 it is Grade II listed for its historical interest. It is divided into 4 main rooms measuring 22'5 x 13'7, 14'5 x 14', 24'2 x 11'8 and 15' x 13' plus loft room over part approached over external stone steps.
Listed by Cadw under reference number 23877 as Grade II it is defined as 'old house and outbuildings at North side of Win Llan'
The upper three sections are considered to be original, possibly 16/17th century and a derivative of a classic longhouse, with house and cowhouse in line.
OUTSIDE
The house has a pedestrian access to the front with pathway bounded by a substantial stone wall, and extends around the left hand gable to the barn and rear.

To the right hand gate are two timber gates opening to the rear with an informal garden area extending around the conservatory to the barn.
AGENTS NOTES
COUNCIL TAX
Denbighshire County Council - Tax Band E
TENURE
Freehold.
DIRECTIONS
*ANTI MONEY LAUNDERING REGULATIONS
Before we can confirm any sale, we are required to verify everyone’s identity electronically to comply with Government Regulations relating to anti-money laundering. All intending buyers and sellers need to provide identification documentation to satisfy these requirements.
There is an admin fee of £30 per person for this process. Your early attention to supply the documents requested and payment will be appreciated, to avoid any unnecessary delays in confirming the sale agreed.
*MATERIAL INFORMATION REPORT
The Material Information Report for this property can be viewed on the Rightmove listing. Alternatively, a copy can be requested from our office which will be sent via email.
*EXTRA SERVICES - REFERRALS
Mortgage referrals, conveyancing referral and surveying referrals will be offered by Cavendish Estate Agents. If a buyer or seller should proceed with any of these services then a commission fee will be paid to Cavendish Estate Agents Ltd upon completion.
VIEWING
By appointment through the Agent's Ruthin office 01824 703030.
FLOOR PLANS - included for identification purposes only, not to scale.
HE/PMW
LOCATION

Located in the centre of tghe village overlooking the historic church and square to this small rural village some 2 miles north east of the A5 at Maerdy almost equidistant between Corwen and Cerrigydrudion.
COMMUNITY FUND

We understand there is a substantial community fund available to property within the village under the Wern Ddu Community wind farm fund. Further details and how to make an application for the grant to improve the thermal insulation of properties is available on;
https://betwsgwerfylgoch.cymru/en/community-fund/
THE ACCOMMODATION COMPRISES

ENTRANCE LOBBY

Panelled and Georgian style double glazed door leading to entrance lobby with slate slabbed floor, opening to splendid central lounge and dining room.
LOUNGE AND DINING ROOM

Forming part of the original cottage, it is an impressive room with three cottage style windows to front each with deep oak topped sills, heavy beamed ceiling with central open tread staircase rising off, impressive inglenook fireplace with supporting beam, stone hearth, large multi fuel stove, TV point, woodgrain effect floor finish, further wood stove to recessed fireplace with raised hearth, two panelled radiators.
Dimensions
Metric: 8.43m x 5.56m
Imperial: 27’8 x 18’3
KITCHEN

The kitchen is fitted with a modern range of base and wall mounted cupboards and drawers to a shaker style with cream tone finish to door and drawer fronts and contrasting woodgrain effect working surfaces to include inset one and half bowl sink with mixer tap and drainer, inset four ring electric hob together with integrated oven, extractor hood, glazed display cabinet, integrated dishwasher, terracotta style ceramic tiled flooring which extends into the side lobby and adjoining shower room.
Dimensions
Metric: 3.25m x 2.46m
Imperial: 10’8 x 8’1
SIDE LOBBY

Space for upright fridge/freezer, plumbing for washing machine, panelled radiator.
SHOWER ROOM

White suite comprising large shower tray with glazed screen and high output shower, pedestal wash basin and WC, two windows both with deep sills, downlighters, white enamelled towel radiator.
Dimensions
Metric: 2.87m x 1.98m
Imperial: 9’5 x 6’6
CONSERVATORY

A spacious room to the rear of the house, it has double glazed windows to three sides together with door leading out, pitched polycarbonate roof, matching flooring to kitchen, panelled radiator.
Dimensions
Metric: 4.75m x 3.23m
Imperial: 15’7 x 10’7
FIRST FLOOR LANDING

BEDROOM ONE

Partially vaulted ceiling, window to front with deep sill, panelled radiator, deep recess to one side providing open fronted wardrobe.
Dimensions
Metric: 5.13m x 3.38m
Imperial: 16’10 x 11’1
BEDROOM TWO

Part vaulted ceiling, deep recess to one side of the chimney breast, wall shelf, window with deep sill, panelled radiator.
Dimensions
Metric: 5.13m x 2.64m
Imperial: 16’10 x 8’8
DETACHED BARN

A very substantial detached stone barn dating from pre 1800 it is Grade II listed for its historical interest. It is divided into 4 main rooms measuring 22'5 x 13'7, 14'5 x 14', 24'2 x 11'8 and 15' x 13' plus loft room over part approached over external stone steps.
Listed by Cadw under reference number 23877 as Grade II it is defined as 'old house and outbuildings at North side of Win Llan'
The upper three sections are considered to be original, possibly 16/17th century and a derivative of a classic longhouse, with house and cowhouse in line.
OUTSIDE

The house has a pedestrian access to the front with pathway bounded by a substantial stone wall, and extends around the left hand gable to the barn and rear.

To the right hand gate are two timber gates opening to the rear with an informal garden area extending around the conservatory to the barn.
AGENTS NOTES

COUNCIL TAX

Denbighshire County Council - Tax Band E
TENURE

Freehold.
DIRECTIONS

*ANTI MONEY LAUNDERING REGULATIONS

Before we can confirm any sale, we are required to verify everyone’s identity electronically to comply with Government Regulations relating to anti-money laundering. All intending buyers and sellers need to provide identification documentation to satisfy these requirements.
There is an admin fee of £30 per person for this process. Your early attention to supply the documents requested and payment will be appreciated, to avoid any unnecessary delays in confirming the sale agreed.
*MATERIAL INFORMATION REPORT

The Material Information Report for this property can be viewed on the Rightmove listing. Alternatively, a copy can be requested from our office which will be sent via email.
*EXTRA SERVICES - REFERRALS

Mortgage referrals, conveyancing referral and surveying referrals will be offered by Cavendish Estate Agents. If a buyer or seller should proceed with any of these services then a commission fee will be paid to Cavendish Estate Agents Ltd upon completion.
VIEWING

By appointment through the Agent's Ruthin office 01824 703030.
FLOOR PLANS - included for identification purposes only, not to scale.
HE/PMW












