
£200,000
Bryn Y Felin, Dyserth,
Introduction
A VERY ATTRACTIVE AND UNIQUE TWO BEDROOM SEMI-DETACHED COTTAGE OF CHARACTER located in a slightly elevated setting to the Conservation Area in the “old village” just a short walk from the High Street in Dyserth. Commanding splendid views from the first floor over the Irish Sea towards the Great Orme and Carneddau mountains, this well presented and quite quirky home affords an outbuilt porch, spacious lounge with feature fireplace and stove, fitted kitchen/dining room, rear porch, side lobby with bedroom and modern bathroom, first floor large bedroom with delightful views.It has a private lawned garden with patio and garden store room together with gated entrance with hard standing providing space for parking two small cars. Inspection highly recommended.
LOCATION
Located in the 'old village' part of Dyserth, it is within easy walking distance of the High street, wide a wide range of local shops for everyday needs together with good road links into Prestatyn, the lower coast road and the A5 at Caerwys.
THE ACCOMMODATION COMPRISES
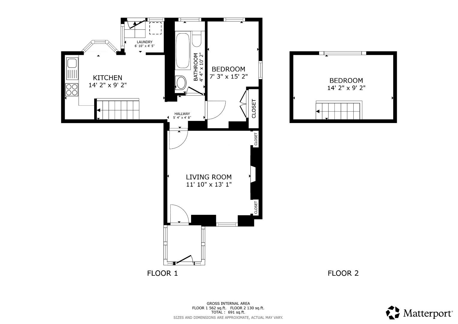
PORCH

Panelled and glazed door with double glazed windows to either side leading into an enclosed porch with wood effect flooring. Further glazed and panelled door leading to lounge.
LOUNGE

A spacious room with an attractive brick fireplace with raised slate hearth and an inset ornate wood stove. Painted open bookshelves to recesses to either side together with high level mantel, wall light points, two ceiling beams and double glazed window with aspect to the front, panelled radiator.
Dimensions
Metric: 3.61m x 3.61m
Imperial: 11’10” x 11’10”
INNER HALL
Opening to kitchen/dining room.
KITCHEN/DINING ROOM

An attractive room to the rear of the house with pleasing aspect over the rear garden, it is fitted with a modern range of base and wall mounted cupboards and drawers with a white finish to door and drawer fronts and contrasting stone effect working surfaces. It has a single drainer stainless steel sink with mixer tap, inset electric hob with convector hood above and integrated oven, downlighters, tiled splashback, further worktop with tiled splash and cupboard above, staircase rising off, woodgrain effect floor finish.
Dimensions
Metric: 4.32m x 2.79m
Imperial: 14’2″ x 9’2″
SIDE LOBBY
Steps leading up to the rear elevation, it provides a worktop and space for the Worcester oil fired combination boiler providing heating and hot water, panelled radiator.
Dimensions
Metric: 2.08m x 1.35m
Imperial: 6’10 x 4’5″
BEDROOM ONE

An attractive room with two double glazed windows affording a dual aspect, outbuilt double door wardrobe, fitted shelves to recess and panelled radiator.
Dimensions
Metric: 4.62m max x 2.21m
Imperial: 15’2″ max x 7’3″
BATHROOM

White suite comprising panelled bath with thermostatically controlled power shower over, pedestal wash basin and WC, fully tiled walls, double glazed window, panelled radiator.
Dimensions
Metric: 3.10m x 1.32m
Imperial: 10’2″ x 4’4″
FIRST FLOOR
BEDROOM TWO

A spacious room with partially vaulted ceiling, it has a wide double glazed window affording a splendid aspect over the rear garden and beyond across the Irish Sea towards Llandudno and the Orme, panelled radiator. It provides a lovely. light and airy room which would be an ideal home office.
Dimensions
Metric: 4.32m max x 2.79m max including stairwell
Imperial: 14’2″ max x 9’2″ max including stairwell
OUTSIDE

The property stands in a secluded setting with a substantial stone and rendered wall to front with pedestrian gate access leading up to the outbuilt porch.

To the right hand side is a wide concreted hard standing providing parking for two cars together with a white painted field gate entrance and picket fence gate opening to the rear garden. There is a paved pathway and gravelled patio together with low level stone walls, large shaped lawn together with a modern timber framed and panelled garden shed.

There is a further stone outbuilding to one side used for general storage with power.
DIRECTIONS
WHAT 3 WORDS .. contemplate.struggle.subject
COUNCIL TAX
Denbighshire County Council - Tax Band C
TENURE
Freehold
*ANTI MONEY LAUNDERING REGULATIONS
Before we can confirm any sale, we are required to verify everyone’s identity electronically to comply with Government Regulations relating to anti-money laundering. All intending buyers and sellers need to provide identification documentation to satisfy these requirements.
There is an admin fee of £30 per person for this process. Your early attention to supply the documents requested and payment will be appreciated, to avoid any unnecessary delays in confirming the sale agreed.
*MATERIAL INFORMATION REPORT
The Material Information Report for this property can be viewed on the Rightmove listing. Alternatively, a copy can be requested from our office which will be sent via email.
*EXTRA SERVICES - REFERRALS
Mortgage referrals, conveyancing referral and surveying referrals will be offered by Cavendish Estate Agents. If a buyer or seller should proceed with any of these services then a commission fee will be paid to Cavendish Estate Agents Ltd upon completion.
VIEWING
By appointment through the Agent's Ruthin office 01824 703030.
FLOOR PLANS - included for identification purposes only, not to scale.
HE/PMW
AGENTS NOTES
PLEASE NOTE. In accordance with the requirements of The Estate Agents Act 1979 as amended, the owner is related to a member of staff at our Ruthin office.
LOCATION

Located in the 'old village' part of Dyserth, it is within easy walking distance of the High street, wide a wide range of local shops for everyday needs together with good road links into Prestatyn, the lower coast road and the A5 at Caerwys.
THE ACCOMMODATION COMPRISES

PORCH

Panelled and glazed door with double glazed windows to either side leading into an enclosed porch with wood effect flooring. Further glazed and panelled door leading to lounge.
LOUNGE

A spacious room with an attractive brick fireplace with raised slate hearth and an inset ornate wood stove. Painted open bookshelves to recesses to either side together with high level mantel, wall light points, two ceiling beams and double glazed window with aspect to the front, panelled radiator.
Dimensions
Metric: 3.61m x 3.61m
Imperial: 11’10” x 11’10”
INNER HALL

Opening to kitchen/dining room.
KITCHEN/DINING ROOM

An attractive room to the rear of the house with pleasing aspect over the rear garden, it is fitted with a modern range of base and wall mounted cupboards and drawers with a white finish to door and drawer fronts and contrasting stone effect working surfaces. It has a single drainer stainless steel sink with mixer tap, inset electric hob with convector hood above and integrated oven, downlighters, tiled splashback, further worktop with tiled splash and cupboard above, staircase rising off, woodgrain effect floor finish.
Dimensions
Metric: 4.32m x 2.79m
Imperial: 14’2″ x 9’2″
SIDE LOBBY

Steps leading up to the rear elevation, it provides a worktop and space for the Worcester oil fired combination boiler providing heating and hot water, panelled radiator.
Dimensions
Metric: 2.08m x 1.35m
Imperial: 6’10 x 4’5″
BEDROOM ONE

An attractive room with two double glazed windows affording a dual aspect, outbuilt double door wardrobe, fitted shelves to recess and panelled radiator.
Dimensions
Metric: 4.62m max x 2.21m
Imperial: 15’2″ max x 7’3″
BATHROOM

White suite comprising panelled bath with thermostatically controlled power shower over, pedestal wash basin and WC, fully tiled walls, double glazed window, panelled radiator.
Dimensions
Metric: 3.10m x 1.32m
Imperial: 10’2″ x 4’4″
FIRST FLOOR

BEDROOM TWO

A spacious room with partially vaulted ceiling, it has a wide double glazed window affording a splendid aspect over the rear garden and beyond across the Irish Sea towards Llandudno and the Orme, panelled radiator. It provides a lovely. light and airy room which would be an ideal home office.
Dimensions
Metric: 4.32m max x 2.79m max including stairwell
Imperial: 14’2″ max x 9’2″ max including stairwell
OUTSIDE

The property stands in a secluded setting with a substantial stone and rendered wall to front with pedestrian gate access leading up to the outbuilt porch.

To the right hand side is a wide concreted hard standing providing parking for two cars together with a white painted field gate entrance and picket fence gate opening to the rear garden. There is a paved pathway and gravelled patio together with low level stone walls, large shaped lawn together with a modern timber framed and panelled garden shed.

There is a further stone outbuilding to one side used for general storage with power.
DIRECTIONS

WHAT 3 WORDS .. contemplate.struggle.subject
COUNCIL TAX

Denbighshire County Council - Tax Band C
TENURE

Freehold
*ANTI MONEY LAUNDERING REGULATIONS

Before we can confirm any sale, we are required to verify everyone’s identity electronically to comply with Government Regulations relating to anti-money laundering. All intending buyers and sellers need to provide identification documentation to satisfy these requirements.
There is an admin fee of £30 per person for this process. Your early attention to supply the documents requested and payment will be appreciated, to avoid any unnecessary delays in confirming the sale agreed.
*MATERIAL INFORMATION REPORT

The Material Information Report for this property can be viewed on the Rightmove listing. Alternatively, a copy can be requested from our office which will be sent via email.
*EXTRA SERVICES - REFERRALS

Mortgage referrals, conveyancing referral and surveying referrals will be offered by Cavendish Estate Agents. If a buyer or seller should proceed with any of these services then a commission fee will be paid to Cavendish Estate Agents Ltd upon completion.
VIEWING

By appointment through the Agent's Ruthin office 01824 703030.
FLOOR PLANS - included for identification purposes only, not to scale.
HE/PMW
AGENTS NOTES

PLEASE NOTE. In accordance with the requirements of The Estate Agents Act 1979 as amended, the owner is related to a member of staff at our Ruthin office.








